Nu finns möjlighet att hyra en trevlig och funktionell kontorslokal om <strong>72 kvm</strong> i en <strong>nyrenoverad kontors- och lagerfastighet</strong> belägen i populära <strong>Bista industriområde</strong>, endast cirka <strong>3 km sydväst om centrala Örebro</strong>. Lokalen passar utmärkt för mindre företag eller team som söker en modern arbetsmiljö i ett strategiskt läge nära både stad och stora vägar.
Om lokalen
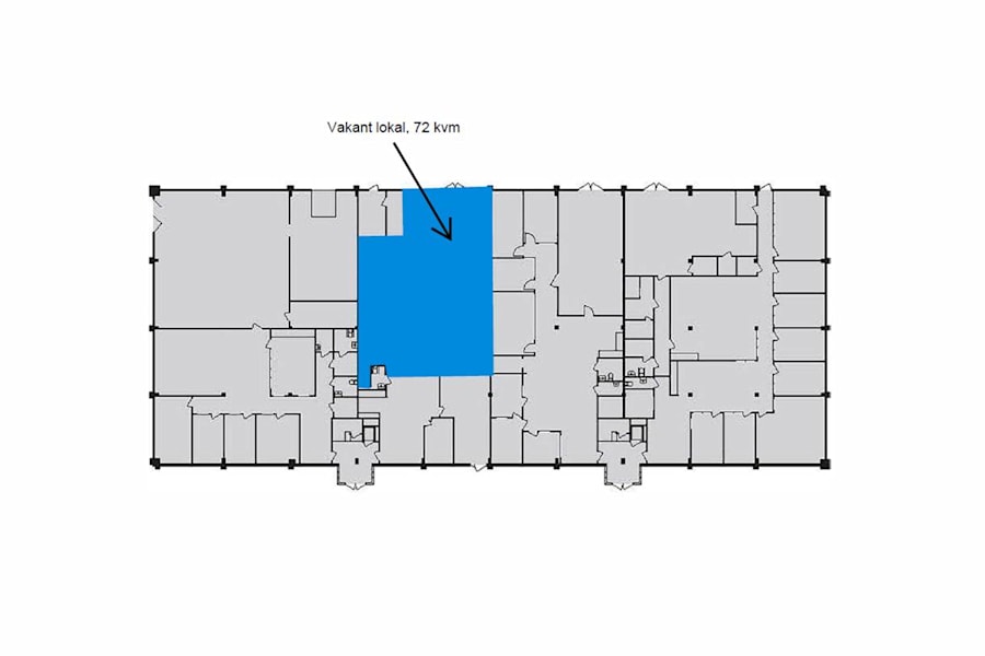
<strong>Yta:</strong> 72 kvm fördelat på kontorsrum, mötes-/konferensrum och öppna ytor för flexibla arbetsplatser.
<strong>Faciliteter:</strong> Eget <strong>pentry</strong> och <strong>WC</strong>.
<strong>Standard:</strong> Nyrenoverad med ljusa, fräscha ytor och goda ljusinsläpp – redo för inflyttning.
Om området
<strong>Parkering:</strong> <strong>Fri parkering</strong> direkt vid fastigheten.
<strong>Grönområden:</strong> Trevliga grönområden i anslutning till byggnaden för paus och rekreation.
Bista industriområde är ett väletablerat verksamhetsområde med blandad bebyggelse av kontor, butiker och mindre lager- och logistikfastigheter. Området erbjuder ett utmärkt logistikläge med <strong>närhet till E18 och E20</strong> samt goda kommunikationer via buss, cykel och gångvägar.
I närområdet finns enklare <strong>lunchservering och service</strong>, medan <strong>Örebros centrala utbud</strong> nås på bara några minuter.
Byggår: 1975
Våningsplan: 2 av 2
Planlösning: Se planritning bland bilder/PDF.
Omgivning
Företag i närheten: NetOnNet, Manges padel, Mekonomen, Bilprovningen och AB Karl Hedin Bygghandel
Parkeringsmöjligheter/garage: Fri parkering
Närservice: Enklare service med lunchservering finns i närområdet och fullt serviceutbud finns inom räckhåll i centrala Örebro