Nu finns en <strong>ledig kontorslokal om 117 kvm</strong> i en nyrenoverad kontors- och lagerfastighet, belägen i ett strategiskt industriområde nära centrala Örebro. Lokalen erbjuder en <strong>praktisk och kontorsindelad planlösning</strong> som passar perfekt för både enskilda arbetsplatser och samarbete i grupp.
<strong>Om lokalen:</strong>
<strong>Om området:</strong>
<strong>Bista industriområde</strong> ligger cirka 3 kilometer sydväst om Örebros centrum och erbjuder ett <strong>optimalt logistikläge</strong> med närhet till E18 och E20. Området präglas av mindre lager- och logistikfastigheter, kontor och butiker, vilket ger en bra mix av verksamheter.
Perfekt för företag som söker en nyrenoverad lokal i ett strategiskt läge nära både stad och vägförbindelser. Välkommen att kontakta oss för mer information eller boka en visning!
Byggår: 1975
Våningsplan: 2 av 2
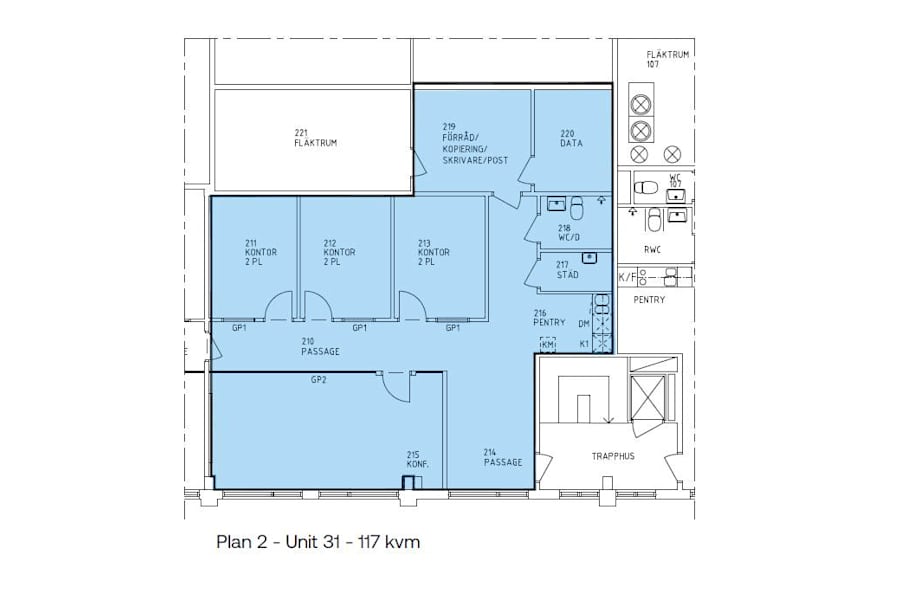
Planlösning: Se planritning bland bilder/PDF.
Omgivning
Företag i närheten: NetOnNet, Manges padel, Mekonomen, Bilprovningen och AB Karl Hedin Bygghandel
Parkeringsmöjligheter/garage: Fri parkering
Närservice: Enklare service med lunchservering finns i närområdet och fullt serviceutbud finns inom räckhåll i centrala Örebro