Här finns nu möjligheten att hyra anpassningsbara ytor om totalt 7 300 kvm som passar perfekt för kontor eller utbildningsverksamhet och ni har möjlighet att hyra hela eller delar av ytan efter behov.
Lokalerna kommer att anpassas efter nästa hyresgäst önskemål och behov.
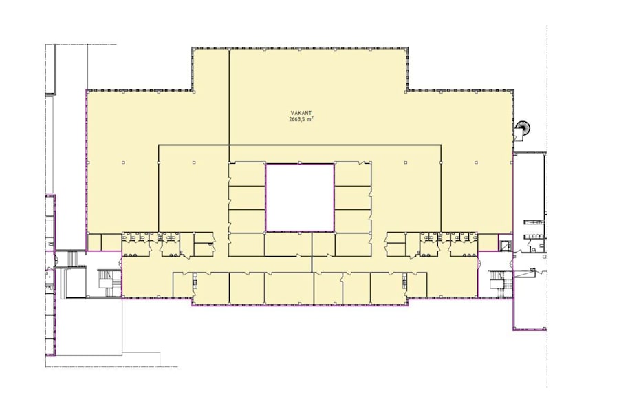
Ytorna är fördelade på tre olika våningsplan:
Entréplan: 2800 kvm Plan 2: 2700 kvm Plan 3: 1800 kvm
Med lokalernas stora fönsterpartier och yteffektiva struktur sitter ni i en ljus, härlig och trivsam miljö.
Lokalerna har en blandad planlösning med öppna kontorslandskap, kontor/mötesrum och konferensrum och är utrustade med kök/pentry, WC, omklädningsrum och nås bekvämt via hiss.
Utanför lokalen finns det en härlig uteplats som ni kan ta del av.
Väldigt goda parkeringsmöjligheter utanför lokalen.
Det finns även möjlighet att hyra till en lagerlokal som är belägen på markplan med markport om 585 kvm för den som behöver extra förvaring. Även ett storkök om 1647 kvm finns tillgängligt för lunchrestaurang eller utbildning inom restaurang.
Fastigheten ligger en kilometer från Angereds centrum, där flera spårvagn- och busslinjer trafikerar. Här finns även flera restauranger i närheten för lunch och fika.
Välkommen till oss på Croisette för ytterligare information och bokning av visning!
Ytor/Planlösning
Blandad planlösning.
Övrig information
Croisette Real Estate Partner har erhållit förmedlingsuppdrag avseende lokalen som beskrivs i detta informationshäfte. Informationen är till största del inhämtad från Fastighetsägaren och eller Hyresgästen. Croisette AB och dess dotterbolag (”Croisette”) ansvarar inte för riktigheten i informationen. All information som är av relevans skall kontrolleras av en eventuell hyresgäst och varken Fastighetsägaren, Hyresgästen eller Croisette kan hållas ansvarig vid felaktigheter i detta informationshäfte.
Ekonomi
Tillträde: Enligt överenskommelse
Omgivning
Omgivning/natur: Här sitter du med närhet till fina och härliga grönområden.
Företag i närheten: Ljungskilebuss AB, Tetrisflytt & Städ, Swedbank, Angereds Trafikskola, m.fl...
Parkeringsmöjligheter/garage: Väldigt goda parkeringsmöjligheter på fastigheten.