Nu finns möjlighet att hyra en rymlig och flexibel lokal i tre plan med eget trapphus och en helt enskild del av fastigheten.
Fastigheten har ett mycket bra skyltläge mot vältrafikerad trafikled, vilket ger utmärkta exponeringsmöjligheter för verksamheten. I direkt anslutning till fastigheten finns gott om parkeringsplatser, vilket underlättar för både medarbetare och besökare.
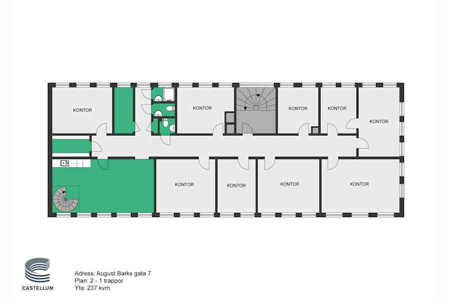
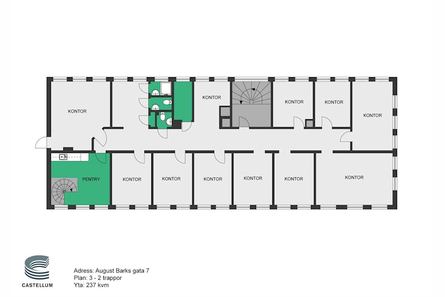
Lokalerna är fördelade över tre våningsplan med ca 220 kvm per plan. De två översta planen binds samman med en interntrappa, vilket skapar en naturlig och effektiv intern kommunikation. Hiss finns ej. Planlösningen är idag rumsindelad, men erbjuder stor flexibilitet och kan anpassas eller byggas om helt efter hyresgästens behov och önskemål.
Samtliga våningsplan har stora, ljusa rum samt tillgång till wc och pentry, vilket skapar en funktionell arbetsmiljö.
Hyresnivån i annonsen avser lokalerna i befintligt skick men vill hyresgästen att hyresvärden skall anpassa lokalerna är det självklart möjligt. Alternativt kan hyresgästen välja att utföra anpassningar i egen regi.
Det finns även möjlighet att hyra till ett lager om 600 kvm!
En lokal med stor potential i ett strategiskt läge – välkommen att kontakta oss för mer information eller visning.
Våningsplan: 3
Planlösning: Lokalen är fördelad över tre våningsplan med eget trapphus. De två översta planen är sammanlänkade via en interntrappa som skapar en effektiv intern kommunikation. Planlösningen är idag rumsindelad med stora, ljusa rum, men kan enkelt anpassas eller byggas om efter hyresgästens behov. På varje våningsplan finns wc samt pentrydel.
Omgivning
Omgivning/natur: Högsbo är en stadsdel i sydvästra Göteborg, endast några kilometer ifrån stadens centrum. Högsbo har en strategisk placering med en nära sammankoppling till Dag Hammarskjöldsleden, Änggårdsbergen och Söderleden. Det centrala läget med direkt närhet till de stora trafiklederna är en av anledningarna till att området attraherar över 1000 företag i många olika branscher. Området ligger även utanför gränsen för vägtull samt erbjuder cykelavstånd till stadskärnan.
I direkt anslutning till Högsbo, på andra sidan av Söderleden finns även det välkända handels- och industriområdet Sisjön.
Tidigare fungerade Högsbo främst som industri- och verksamhetsområde, karaktären på området har dock genomgått förändringsarbeten under de senaste årtiondena.
Storslagna planer finns för stadsdelen och utvecklingen fortsätter nu ytterligare. I och med anläggandet av kommande bostadsprojekt Södra Änggården, ingår området i ett av de större stads- och utvecklingsprojekten i Göteborg.
Avsikten är att skapa en grön stadsmiljö i direkt anslutning till naturreservatet Änggårdsbergen, en blandstad med upp till 7000 bostäder, arbetsplatser samt all tänkbar service.
På behagligt avstånd från Högsbo finns stora knutpunkter för kollektivtrafik - västerut finns Frölunda Torg, norrut finns Järntorget/Linnéplatsen och österut Mölndals Centrum.
Parkeringsmöjligheter/garage: Parkeringsmöjligheter finns intill fastigheten.
Närservice: Serviceutbudet i området är stort med tillgång till all typ av närservice i form av banker, post, lunchrestauranger, dagligvaruhandel och detaljister.
Högsbo har eget köpcentrum 421, där besökare bland annat hittar välkända aktörer såsom ICA Maxi, H & M, MediaMarkt, Hemtex, Dressmann, Intersport och många fler.