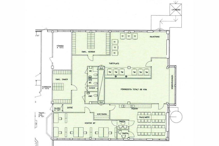
Upptäck en flexibel kontorslokal i markplan med ljusa ytor och praktisk planlösning. Lokalen erbjuder både omklädningsrum och personalutrymmen, vilket gör den väl anpassad för verksamheter med aktiva arbetsdagar.
Tack vare direkt tillgång för inlastning blir logistiken enkel och effektiv – perfekt för företag som kombinerar kontorsarbete med varuhantering eller service.
Välkommen att kontakta oss för mer information och visning!
Planlösning: Blandad planlösning med kontor och öppna ytor. Personalutrymmen med omklädningsrum.
Omgivning
Omgivning/natur: Högsbo är en stadsdel i sydvästra Göteborg, endast några kilometer ifrån stadens centrum. Högsbo har en strategisk placering med en nära sammankoppling till Dag Hammarskjöldsleden, Änggårdsbergen och Söderleden. Det centrala läget med direkt närhet till de stora trafiklederna är en av anledningarna till att området attraherar över 1000 företag i många olika branscher. Området ligger även utanför gränsen för vägtull samt erbjuder cykelavstånd till stadskärnan.
I direkt anslutning till Högsbo, på andra sidan av Söderleden finns även det välkända handels- och industriområdet Sisjön.
Tidigare fungerade Högsbo främst som industri- och verksamhetsområde, karaktären på området har dock genomgått förändringsarbeten under de senaste årtiondena.
Storslagna planer finns för stadsdelen och utvecklingen fortsätter nu ytterligare. I och med anläggandet av kommande bostadsprojekt Södra Änggården, ingår området i ett av de större stads- och utvecklingsprojekten i Göteborg.
Avsikten är att skapa en grön stadsmiljö i direkt anslutning till naturreservatet Änggårdsbergen, en blandstad med upp till 7000 bostäder, arbetsplatser samt all tänkbar service.
På behagligt avstånd från Högsbo finns stora knutpunkter för kollektivtrafik - västerut finns Frölunda Torg, norrut finns Järntorget/Linnéplatsen och österut Mölndals Centrum.
Parkeringsmöjligheter/garage: Parkeringsmöjligheter finns intill fastigheten.
Närservice: All offentlig och kommersiell service med butiker och lunchrestauragner finns inom ett par minuters avstånd.
Högsbo har ett eget köpcentrum 421, där besökare bland annat hittar välkända aktörer såsom ICA Maxi, H & M, MediaMarkt, Hemtex, Dressmann, Intersport och många fler.