Letar du efter en modern lokal som kan formas efter din verksamhet? På Bjurögatan 48 i Malmö finns nu möjlighet att hyra 416 kvm i en fastighet som just nu totalrenoveras. Här får du chansen att påverka utformningen redan nu, perfekt för lager, logistik, produktion eller lätt industri.
<strong>Lokalfakta:</strong>
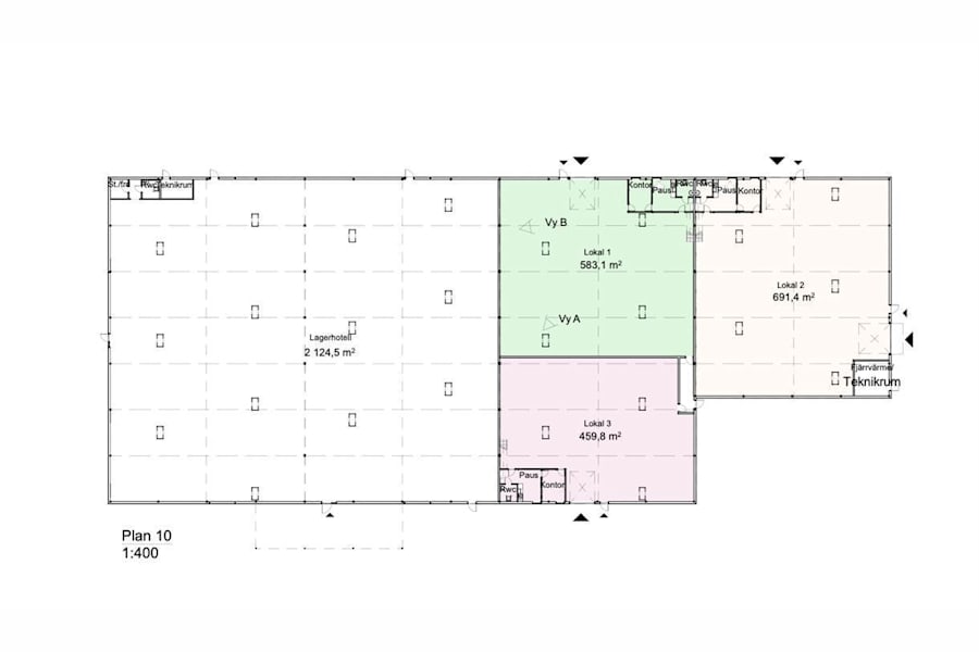
<strong>Yta:</strong> 416 kvm
<strong>Planlösning:</strong> Öppna och flexibla ytor som kan anpassas efter behov
<strong>Faciliteter:</strong> Kontorsdel, pausrum, lastport och omklädningsrum
<strong>Läge:</strong> Lättillgängligt med smidig anslutning till större vägar
<strong>Tillträde:</strong> Hösten 2025
Fastigheten får modern standard och smart planering som ger en effektiv, trivsam och funktionell arbetsmiljö, oavsett verksamhet.
<strong>Kontakta oss för mer information eller för att boka en visning!</strong>
Omgivning
Omgivning/natur: Spillepengens naturområde
Företag i närheten: Flera stora företag i närheten så som Paxo AB, SM Logistics AB, Idesta Foodtech AB och massa fler kända företag
Parkeringsmöjligheter/garage: Finns i anslutning till lokalen
Närservice: Circle K Malmö ligger bara några minuters gångavstånd bort, och lunchrestaurangen Restaurang Malmö finns också inom några minuters promenad
Skyltläge: Bra