Välkommen till detta fina och välplanerade kontor!
Här kan gästerna tas emot i en fin och representativ reception.
Som hyresgäst får ni härliga öppna ytor med generöst ljusinsläpp.
Välkommen på visning!
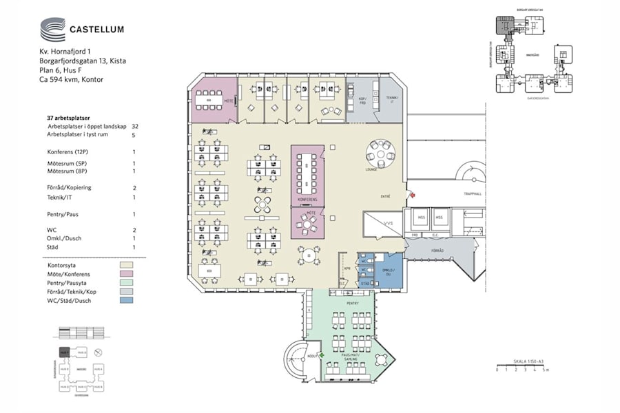
Planlösning: Planlösningen består av ett öppet kontorslandskap med flera mötesrum, arbetsplatser och sociala ytor samlade kring en central zon för samarbete. I anslutning finns även pentry, pausytor och stödutrymmen som förråd, teknikrum och hygienutrymmen.
Omgivning
Omgivning/natur: Välkommen till Kista. Platsen där människor från hela världen samlas för att upptäcka, utforska, uppfinna och uppleva. Här testkörs ny teknik, här breder gatukonsten ut sig, här överraskar restaurangerna och här frodas grönska och innovationer, precis som nya förmågor och forskarstjärnor.
Ändå har Kista mer att erbjuda. De närmaste åren kommer stadsdelen få flera tusen nya bostäder och arbetsplatser samt bli en del av tvärbanan, så att livet kan sprudla i varje hörn och under dygnets alla timmar. Och för att ytterligare ta vara på Kistas fulla potential har vi på Castellum gått samman med andra aktörer i ett initiativ som ger stadsdelen en kulturell och social skjuts.
Vad som händer mellan milstolparna är det ingen som vet. Men hör ni hemma bland de nytänkande, är detta platsen för er. Vi lovar att alltid vara på tårna för att hålla jämna steg med både ert företags och Kistas utveckling.
Närservice: Kista Galleria erbjuder all den service man kan tänka sig och är en av Stockholms mest välbesökta Gallerior. Allt från shopping, restauranger och olika nöjesaktiviteter erbjuds. För den biosugne erbjuder SF en fin och ombygg biograf. Gillar man racing erbjuder O'Learys, förutom bowling även GoCart. Många välkända märken som H&M, KappAhl, Nilsson Shoes, Vero Moda, Indiska mfl finns etablerade här.