Nu finns möjlighet att hyra en funktionell lager- och kontorslokal intill Skärholmen Centrum.
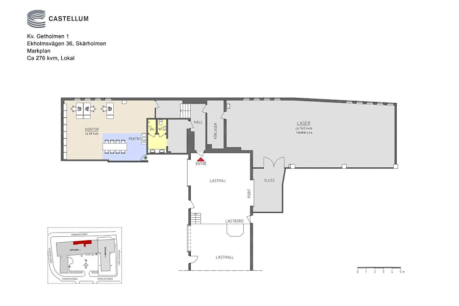
Lokalen erbjuder en välplanerad kombination av lager och kontor. Lagerdelen omfattar cirka 140 kvm med generös takhöjd om cirka 4,2 meter, vilket skapar goda förutsättningar för effektiv hantering och förvaring. I anslutning finns sluss, port samt lastkaj med lastbord som underlättar in- och utleveranser.
Till lokalen hör även en kontorsdel om cirka 69 kvm med plats för arbetsplatser och mötesrum – en praktisk lösning för verksamheter som vill samla administration och lager under samma tak.
Läget ger närhet till tunnelbana, ett brett serviceutbud samt smidig access till E4/E20. I fastigheten finns dessutom goda parkeringsmöjligheter.
Lokalen passar exempelvis för e-handel, serviceverksamhet, lättare logistik eller företag som söker en kombinerad lager- och kontorslösning i södra Stockholm.
Välkommen att kontakta oss för mer information eller för att boka visnin
Ytor/Planlösning
Lokalen är disponerad med en tydlig uppdelning mellan lager och kontor. Lagerdelen har generös takhöjd och är direkt kopplad till sluss, port och lastkaj för smidiga leveranser.
Övrig information
Fastigheten ligger precis intill södra delen av Skärholmen Centrum. Här kan du uträtta alla dina ärenden smidigt på en lunch. Byggnaden inrymmer kontor och ett mindre lager och har synnerligen god standard med en trevlig inglasad innergård som sprider ljus in till lokalerna.
Ekonomi
Tillträde: Enligt överenskommelse.
Omgivning
Omgivning/natur: Vår fastighet i Skärholmen angränsar nära till E4/E20 med en avfart direkt in till fastigheten. Resväg till centrala Stockholm med bil är cirka 15 minuter. Mycket bra kommunikationer med tunnelbana som ligger precis vid gallerian samt många busslinjer trafikerar området runt SKHLM. Regionen kring Skärholmen är ett mycket starkt läge och byggnationen av "Förbifart Stockholm" medför ännu kortare restider. Det händer mycket i Skärholmen med 6000 nya bostäder som planeras i närområdet vilket medför ett ytterligare stärkt Skärholmen.
Parkeringsmöjligheter/garage: Här finns det gott om garage- och parkeringsplatser att hyra.