<strong>Lokalbeskrivning</strong>
Trevlig kombilokal med kontor/lager på totalt 373 kvm i en representativ byggnad. Lokalen har ingångar i markplan via trapphus samt via ytterdörr i fasad för godshantering in till lageryta.
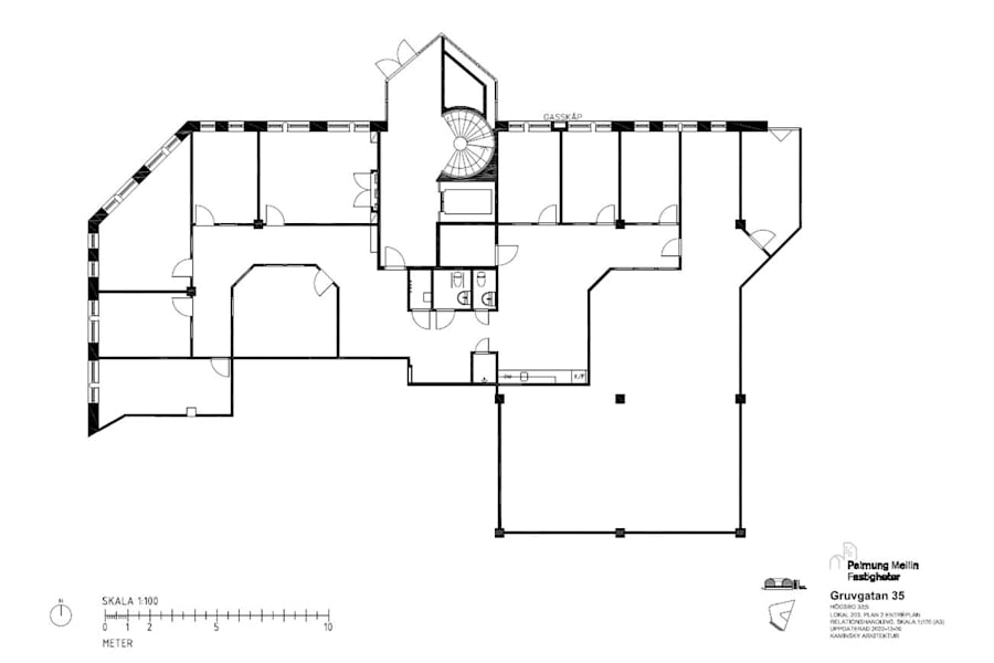
Ytan består av en blandning av kontorsrum i olika storlekar, lager, konferensrum, förråd, kök/pausyta, två WC samt dusch (se tillgänglig planskiss). Lagerytan uppgår till ca 142 kvm.
Det går också att nå lokalen via hiss eller trappa upp från byggnadens varmparkeringsgarage i källarplan.
I byggnaden finns också en gemensam ljusgård som hyresgästerna kan använda till utställningar, events och lunch- samt fikaraster.
Lokalen är tillgänglig från 1 februari 2026.
<strong>Omgivning</strong>
Högt beläget och angränsande till naturområdet Änggårdsbergen, är läget nära såväl till centrala Göteborg som till de stora trafiklederna Dag Hammarskjöldsleden och Söderleden. Köpcentrum 421 samt Linnéplatsen ligger på två respektive tre kilometers avstånd.
På kort gångavstånd finns flera lunchrestauranger och angränsande ligger också entrén till Änggårdsbergen.
<strong>Kommunikationer</strong>
Busshållplats finns vid JA Wettergrens gata. Linjerna 758 och 82 trafikerar området. Kollektivtrafiken går via den närliggande knutpunkten Marklandsgatan där alla bussar och spårvagnar i området ansluter.
<strong>Parkering</strong>
Platser i varmgarage (med möjlighet till elbilsladdning) samt goda parkeringsmöjligheter utomhus, varav 36 elbilsplatser, finns på fastigheten. Cykelparkering finns i varmgarage samt utanför byggnaden.
Byggår: 1990