Helt nyrenoverad kontorslokal i två plan på 837 kvm med möjlighet att påverka planlösningen. Lokalen har ett mycket bra läge vid Backaplan. Busshållplatsen Swedenborgsplatsen ligger endast några meter från fastigheten med täta bussavgångar till centrum.
Lokalen är ljus med mycket fönster och har bra takhöjder. En ny hyresgäst kan vara med och påverka planlösning samt utformning.
RWC med dusch och WC i båda våningsplanen är nyrenoverade och har givetvis försetts med smakfullt kakel och klinker.
Kontorslokalen har bra inomhusmiljö med god ventilation samt kyld tilluft. Man når lokalen via två olika trapphus, via lastbrygga/uteplats eller med hiss. Det finns även en trevlig balkong i anslutning till lokalens övre plan.
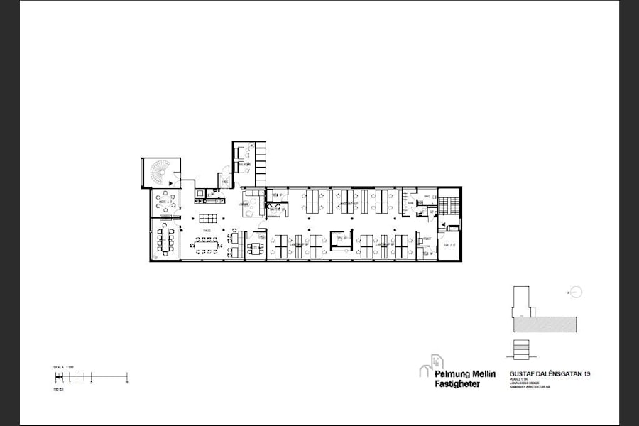
Lokalen håller på att byggas och färdigställs efter avstämning med en ny hyresgäst. Se förslag / exempel på planlösning som finns bifogad till denna annons.
Byggår: 1960
Omgivning
Omgivning/natur: Läget är centralt på Hisingen. Busslinjerna är flera och hållplatserna ligger ett fåtal meter från fastigheten, vilket gör det enkelt för både kollegor och besökare att ta sig till och från kontoret. Där tar du dig smidigt in till Göteborgs city samtidigt som utbudet av närliggande service också är stort. Lunchrestauranger, gym och Backaplans handelsområde ligger på ett stenkasts avstånd.
Lokalen ligger också nära Hisingsparken som är Göteborgs största parkområde.
Parkeringsmöjligheter/garage: Parkering, med möjlighet till elbilsladdning, finns att hyra på fastigheten.
Skyltläge: Bra skyltläge mot Gustaf Dalénsgatan och Swedenborgsplatsen.