Fastigheten har genomgått en större renovering både exteriört och interiört. Lokalen är betongren och det finns möjlighet att välja material samt anpassa planlösningen efter egna behov och önskemål. I samband med lokalanpassning eller ombyggnad är vår ambition att använda återbrukat material så långt det är möjligt och vi prioriterar hållbarhet för minsta möjliga miljöpåverkan.
Huset består av 2 våningsplan och entréplan passar perfekt för co-working och serviceytor.
Det finns en trevlig uteplats där man kan äta sin lunch eller njuta av en kopp kaffe.
Parkeringsplatser finns intill fastigheten.
Välkommen att kontakta oss för mer info och visning!
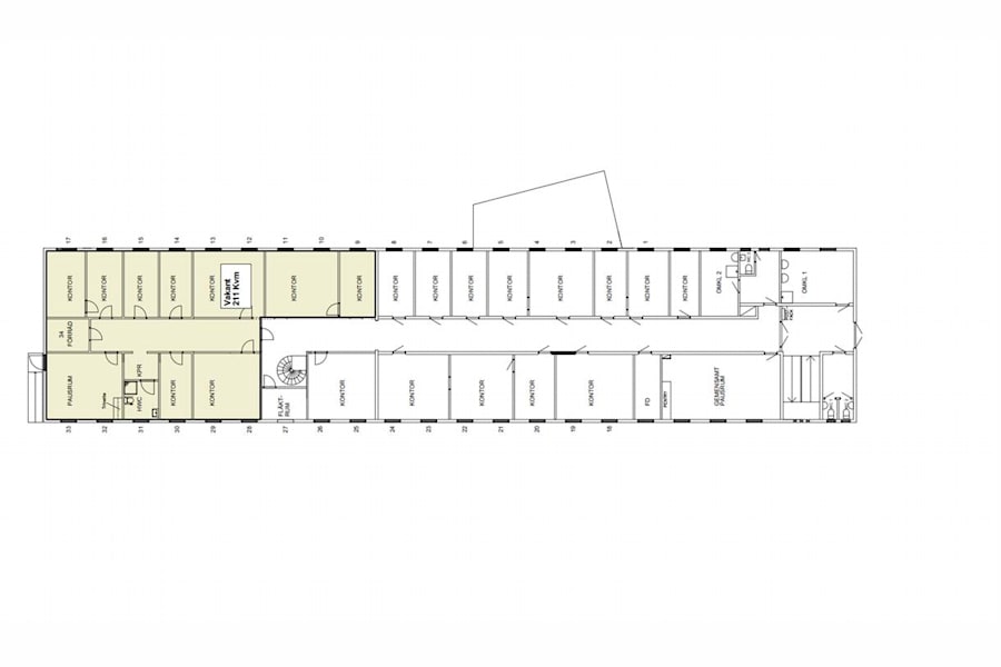
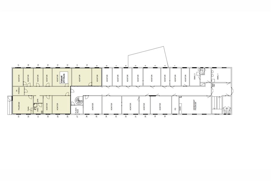
Ytor/Planlösning
Idagsläget är lokalen betongren och rumsindelad med mindre och större kontorsrum, vi anpassar efter era behov och önskemål.
Övrig information
Kontorsfastighet med lager och förrådsdel.
Ekonomi
Tillträde: Enligt överenskommelse.
Utförande
Våningsplan: 2
Omgivning
Omgivning/natur: Området ligger mitt emellan stad och bad, det vill säga på vägen från stadskärnan och mot Göteborgs mest attraktiva bostadsområden och badstränder. Högsbo genomgår just nu en långsiktig förvandling där man går från att vara ett renodlat industriområde till att bli en blandstad, det vill säga en handels- och mötesplats där många olika verksamheter ryms och där näringsliv samsas med boende, handel, restauranger och samhällsfunktioner av olika slag. Pågår större förändringar i hela området. Närhet till den tomt där ca 3 000 nya bostäder planeras.
Gränsar till vår fastighet Högsbo 20: 12 vilket möjliggör "större framtida projekt". Närhet till grönområden.