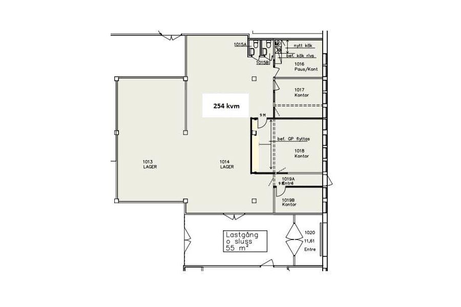
Denna rymliga lagerlokal ligger i bottenplan på Järnbrotts prästväg 2. Här erbjuds en perfekt kombination av lager- och kontorsutrymmen med 3 kontorsrum, separat pentry och resten öppen yta för lager.
Inlastningen sker via en gemensam sluss och sen in till lokalen genom dubbeldörrar.
Lokalen ligger med enkel tillgänglighet både från söderleden och bussknutpunkten Radiomotet. Här finns det gott om parkeringsplatser, besöksplatser, cykelrum och möjlighet till elbilsladdning. I fastigheten finns en uppskattat lunchrestaurang med en härlig uteservering. I fastigheten finns ett gym som ingår i månadskostnaden för samtliga anställda.
Varmt välkomna att kontakta mig för mer information eller en visning!
Övrig information
Kontorsfastighet i Järnbrotts bästa läge! Fastigheten erbjuder en modern och bekväm arbetsmiljö med ett brett utbud av service direkt i huset, smidigt tillgängligt via vår receptionstjänst. Här får hyresgästerna stöd i vardagen och en professionell första kontakt för besökare. I hjärtat av byggnaden finns en ny, ljus och inbjudande ljusgård som erbjuder en naturlig mötesplats för både spontana samtal och bokade möten. Den passar lika bra för en avkopplande fika som för inspirerande arbetsstunder i en trivsam miljö. Som en extra förmån ingår även tillgång till ett gym med bastu för alla hyresgäster och konferensmöjligheter för allt mellan 16-50 personer.
Ekonomi
Kontraktbeskr.: Indikativ hyra i befintligt skick: Kallhyra: 1200 kr/kvm
I fastigheten finns det möjlighet att hyra olika konferensrum i olika storlekar som går att hyra. Antingen heldag eller halvdagar. De går även att beställa till fika och catering.
Omgivning
Omgivning/natur: Fastigheten ligger i stadsdelen Järnbrott i hjärtat av Västra Frölunda. I omgivningen finns bostadsområden, två välbesökta köpcentrum och bra kommunikationer.
En kort promenad bort finns livliga Frölunda centrum.: Där hittar du bland annat ett köpcentrum med en mängd olika butiker, gym, apotek, postombud, systembolag, caféer och restauranger.