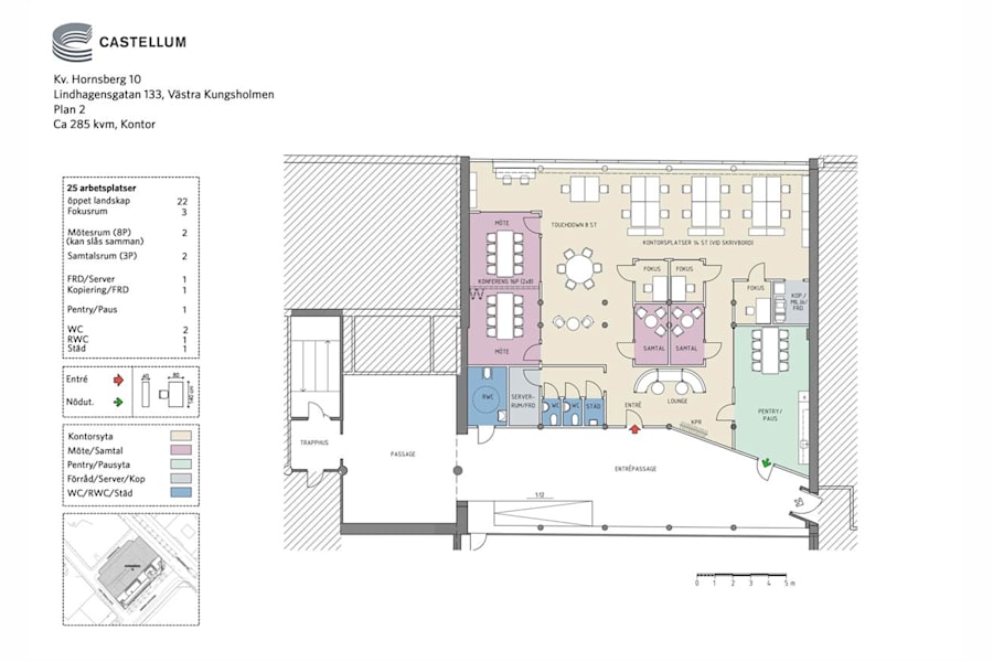
Här finns det plats för 25 medarbetare och lokalen kan lätt anpassas efter just er verksamhets behov.
I den rymliga entréhallen finns gott om plats för besökare och medarbetare att slå sig ned en stund. Natursten, glas och trä kontrasteras effektfullt mot inslag av svart plåt för ett garanterat gott första intryck.
Äta matlådan på en brygga med utsikt över Mälaren? Alldeles intill Hornsbergs vackra strandpromenad hittar du vår fastighet på Kungsholmen – omgiven av innerstadspuls, service och utmärkta kommunikationer. Här får arbetsdagen mervärde.
Fastigheten är uppförd i tre omgångar. Den intressanta arkitekturen bär tydliga spår av de olika tidsepokerna.
Välkommen på Visning!
Vår fina fastighet Hornsberg 10 på Lindhagensgatan 133 har genomgått en stor förändring och är vårat största återbruksprojekt någonsin!
Från att tidigare ha varit en tråkigt 80-talshus har nu både utsidan och insidan fått ett ordentligt lyft med sort hållbarhetsfokus. I stället för att riva fastigheten som ger väldigt högt koldioxidutsläpp och miljöpåverkan valde vi att behålla så mycket som möjligt och förädla. Tack vare att vi återanvände stommen och inte behövde använda någon betong, sparades utsläpp på 1 033 ton CO2e vilket motsvarar ca 785 6000 mil i bil.
Övrig information
Fastigheten är byggd i etapper där de äldsta delarna är från 1890 och den senaste större renoveringen stod klar 2023. Renoveringen gjordes med största fokus på återbruk och hållbarhet - Detta är huset som sparat lika mycket Co2 som 785 600 mil i bil. Under de senaste 100 åren har allt från stall till penicillinfabrik huserat i fastigheten som idag innrymmer främst kontor men även ytor för provkök, butik och laboratorium.