Marieholmsgatan 120 315 m²
415 02 Göteborg
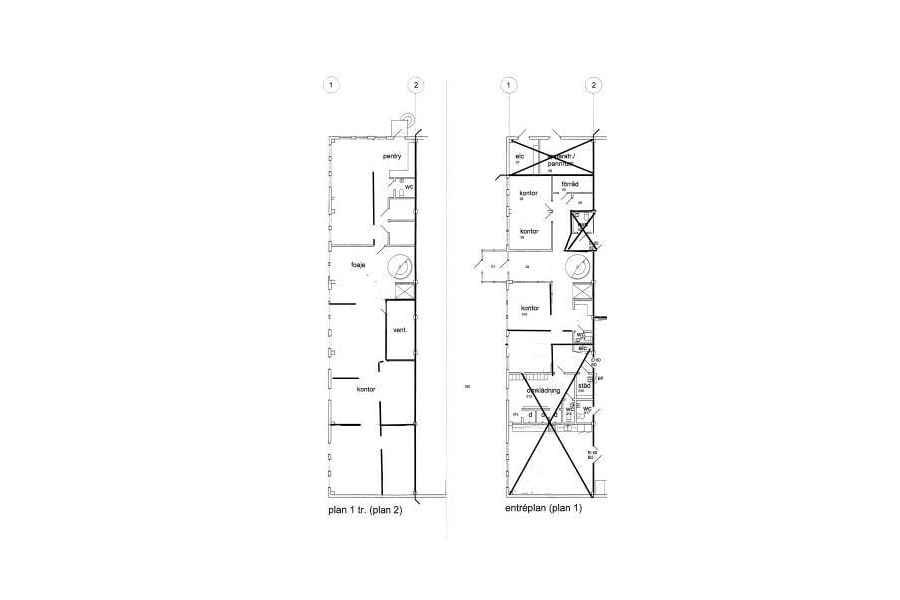
Nu finns chansen att hyra en lokal om två plan med mycket bra skyltläge längs E45 i Gamlestaden! Den här flexibla ytan passar perfekt som både kontor och butik/showroom. På entréplan kan du skapa en butiksyta, medan på övre plan erbjuds ljusa kontorslokaler. Här får du en lokal med hiss, pentry och dusch, allt för att skapa en bekväm arbetsmiljö för dig och dina medarbetare. Med ett utmärkt läge precis vid E45 och närhet till Göta älv ger detta ett läge med väl synlighet.
Lokalen erbjuder dessutom gott om parkeringsplatser och en busshållplats precis utanför dörren, vilket gör det enkelt för både kunder och personal att ta sig hit.
Kontakta mig för mer information!