Lokal med många möjligheter och stora ljusa ytor för t ex aktivitetsbaserat arbete. Planlösningen kan anpassas för att matcha era önskemål och krav. Låt oss veta vilken typ av arbetsmiljö som passer er bäst. Vid anpassningar försöker vi alltid ha hållbarhet och återbruk i åtanke.
Läget är perfekt med spårvagnshållplats precis utanför dörren, vilket gör resan hit smidig och enkel. Du är bara 5 minuter bort från Korsvägen, vilket ger snabb och enkel tillgång till Göteborgs pulserande centrum. Dessutom tar det bara 15 minuter att cykla hit från centralstationen.
Välkommen att kontakta oss för mer info och visning!
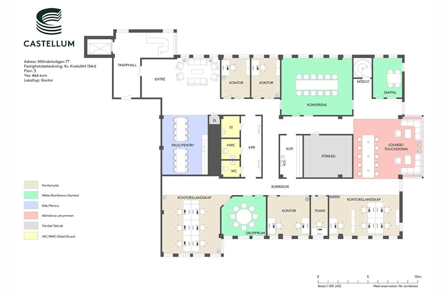
Ytor/Planlösning
Blandad planlösning med enskilda kontorsrum och större öppna ytor samt gemensamhetsytor.
Övrig information
Fastigheten ligger nära de stora lederna, vilket gör det lätt att nå från olika delar av staden och ger ett utmärkt skyltläge.
Ekonomi
Tillträde: 2026-08-01.
Utförande
Våningsplan: 2
Omgivning
Omgivning/natur: Enkelt att nå fastigheten via trafikleder och allmänna kommunikationer.
Parkeringsmöjligheter/garage: För bilburna finns goda parkeringsmöjligheter att hyra till.