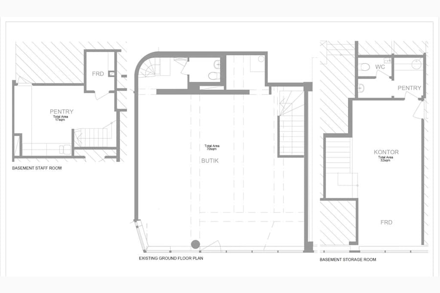
Butikslokal på en av citys mest prestigefulla adresser för Retail. Butiken är belägen på Norrlandsgatan invid Norrmalmstorg i Biblioteksstan. Ytan fördelad på butik, lager och kontor. Endast etablerade butikskoncept godkänns av hyresvärden, ej koncept inom mat och cafe. Mejla vid seriöst intresse, jorgen@nextor.se Ingen information lämnas ut på telefon. Inga besök i butiken utan att först boka en visning.
Yta 119 kvm (butik, lager och kontor): Hyra ca 79 000 kr/mån ex moms: Fast.skatt tillkommer: Överlåtelse 495 000 kr: Tillträde våren/sommaren 2026