En ny möjlighet växer fram i hjärtat av Märsta Centrum en modern fastighet som kombinerar ett starkt handelsläge med attraktiva verksamhetsytor.
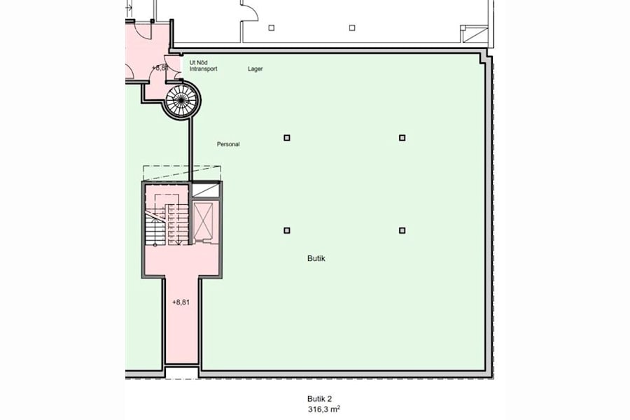
I markplan erbjuds en kommersiell lokal om 316 kvm en perfekt yta för detaljhandel eller annan livsstilsbutik som vill etablera sig i ett läge med stabilt kundflöde. Lokalen får generösa skyltfönster och mycket god exponering mot ett av centrumets mest livliga stråk, där människor rör sig dagligen för shopping och vardagsärenden.
Ytan lämpar sig väl för koncept som söker en effektiv och lättöverskådlig butiksyta med tydlig entré och närhet till starka dragare i centrumet. I och med att fastigheten nu utvecklas ges hyresgästen en unik möjlighet att vara med och forma lokalen från grunden.
Fastigheten får dessutom direkt anslutning till Märsta Centrums största markparkering, vilket ger enkel tillgång för både kunder och personal. Med etablerade handelsaktörer som Willys, Kappahl, Normal och Eurosko som närmaste grannar skapas goda förutsättningar för synergier och kompletterande handel.
Här ges möjlighet att etablera verksamheten i en modern och växande handelsmiljö mitt i ett centrum som fortsätter att utvecklas.
Ytor/Planlösning
Öppen eller rumsindelat
Bekvämligheter
Märsta centrum erbjuder ett brett utbud av handel, tjänster och restauranger. Det är den centrala handelsplatsen i Sigtuna.
Omgivning
Märsta Centrum är en levande knutpunkt med butiker, service, vårdcentral, gym och restauranger. Här rör sig människor hela dagen, och platsen är särskilt välbesökt under rusningstider tack vare närheten till kollektivtrafiken.
Märsta och Sigtuna är en växande och attraktiv region både som plats att bo och leva på och som etableringsplats för företag. I och med de nya satsningar som Fastpartner gör ökar den attraktionskraften ytterligare.
Kommunikationer
Märsta är centralort i Sigtuna kommun och ligger nästan mittemellan Stockholm och Uppsala, med direkt närhet till E4:an. Restid till Stockholm med bil cirka 35 minuter, till Uppsala cirka 30 minuter och Arlanda cirka 10. Från Märsta station går pendeltåg till Stockholms centralstation. Även fjärrtågen mellan Stockholm och Uppsala stannar i Märsta. Bra bussförbindelser finns till Sigtuna, Valsta, Steningehöjden och Arlanda. Gångavstånd från Märsta station till Märsta Centrum. Buss trafikerar sträckan och tar ett par minuter. Samtliga större busslinjer passerar dessutom Märsta C.