Nu finns chansen att hyra en unik kontorslokal högst upp i en toppmodern fastighet plan 7 med fantastisk utsikt och en stor, privat takterrass. Perfekt för luncher i solen, kreativa pauser eller inspirerande utomhusevent.
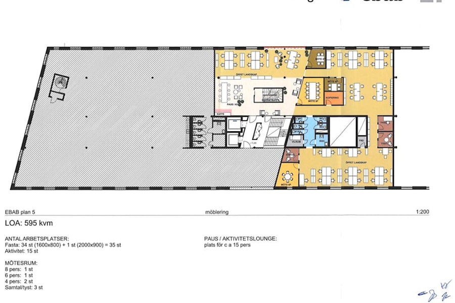
Lokalen är tillgänglig omgående och erbjuder stor flexibilitet ni har möjlighet att påverka planlösningen för att skapa en arbetsmiljö som passar just er verksamhet. Mötesrummen håller hög standard och lokalen lämpar sig väl för både samarbete och fokus.
Fastigheten har en representativ entréhall, stora hissar och ett garage med parkeringsmöjligheter för smidig access. I husets restaurang serveras dagligen varierande luncher perfekt för både personal och besökare.
Fastigheten är miljöklassad enligt BREEAM-SE "Excellent", vilket innebär ett hållbart och framtidssäkert val.
Privat takterrass med utsikt
Flexibel planlösning anpassas efter era behov
Mötesrum av hög kvalitet
Miljöklassad fastighet
Tillgänglig för inflyttning nu
Välkommen att kontakta oss för mer information eller för att boka en visning!
Omgivning
Pastellvägen 6 ligger i attraktiva Globen/Johanneshov, ett område där modern stadsmiljö möter dynamisk utveckling. Globenområdet erbjuder öppna ytor och närliggande grönska, vilket ger möjlighet till både avkopplande promenader och socialt umgänge utomhus perfekt för såväl arbete som fritid.
Globenområdet har mycket goda kommunikationer med tunnelbana (Globen, Skärmarbrink och Gullmarsplan), tvärbana och bussar. Det är enkelt att ta sig till och från kontoret för både medarbetare och besökare. I huset finns en poulär lunchrestaurang. Det finns ett brett utbud av lunchrestauranger, fik och matställen i närområdet. Globen Shopping erbjuder butiker, apotek, systembolag och annan service som underlättar vardagen. Även nära Slakthusområdet.
Fastighet
Modern och miljömärkt fastighet.