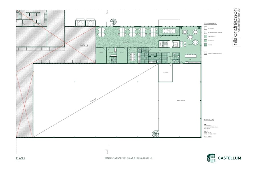
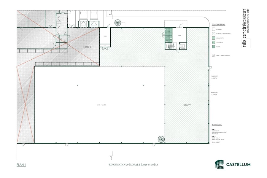
På Ringön kan vi erbjuda en unik etablering för lager/industri och kontor. Här får ni möjlighet att tillsammans med oss utforma den perfekta nyproducerade lokalen som passar er verksamhet. Lagerdelen blir ca 2000 kvm varav 1200 kvm har en takhöjd på 8 meter. Kontorsdelen tillkommer och ytan är flexibel mellan ca 450 - 800 kvm.
Fastigheten kommer att delas med ytterligare en hyresgäst.
Vi bygger och äger och ni förhyr lokalen, inför och under byggtiden har vi ett nära samarbete med arkitekt och projektledare.
Lokalen är belägen i ett mycket strategiskt läge och attraktivt område med lättillgänglighet från de större lederna och Göteborgs centrala delar.
I närområdet finner ni ett brett utbud av populära restauranger som Aldardo, Saras Husmanskost, Ivans Pilsnerbar och restaurang Paradis, alla belägna på Ringön.
Precis utanför fastigheten finns busshållplats där busslinje 47 trafikerar, vilket gör det enkelt och smidigt att ta sig hit.
Tveka inte att kontakta oss för mer infor och visning!
Ytor/Planlösning
Lokalens utformning och planlösning planeras ihop med hyresgästen.
Övrig information
Mark som skall bebyggas.
Ekonomi
Tillträde: 2027-05-01.
Omgivning
Omgivning/natur: Centralt beläget på Hisingen och nära centrala stan.