Ljus modern lokal med en planlösning som är rumsindelad samt konferensrum och mindre mötesrum. Lokalen anpassas för er verksamhet och för att ni ska uppnå ert bästa resultat och att medarbetarna skall ha en kreativ och trivsam arbetsmiljö. Vid anpassningar har vi tät kontakt med er, arkitket och projektledare.
I samband med lokalanpassning eller ombyggnad är vår ambition att använda återbrukat material så långt det är möjligt och vi prioriterar hållbarhet för minsta möjliga miljöpåverkan.
Låter det här som ett alternativ att diskutera vidare med oss?
Välkommen att kontakta oss för mer info och visning.
Våningsplan: 3
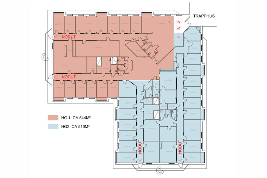
Planlösning: I dagsläget kontorsrum, konferensrum, mindre mötesrum och gemensamhetsytor. Planlösningen kan anpassas efter era behov och önskemål.
Omgivning
Omgivning/natur: I norra Kungsbacka, ca två mil söder om Göteborg. Ett naturnära men ändå centralt industriområde med shopping och kommunikationer i närheten.
I Kungsbacka har flera nya och välordnade kontors- och industriområden växt fram på senare år och nya planeras. Näringslivet domineras av små och medelstora företag. Tillväxten i kommun har varit stark sedan 1970-talet.
Närservice: I närheten ligger Hede Fashion Outlet och fler restauranger finns att välja på. I Kungsbacka innerstad , som ligger nära, finns gott om caféer och restauranger likaså i Kungsmässan köpcenter finns all tänkbar service med många butiker, systembolag, bank, apotek, mataffärer.
Parkeringar finns i anslutning till fastigheten.
Havet, badstränderna och de många naturreservaten ger möjligheter till fina upplevelser på. Gottskär och Särö är klassiska seglarmiljöer.
Kungsbacka Innerstad, med anor från medeltiden, präglas av träbebyggelse från förra sekelskiftet.