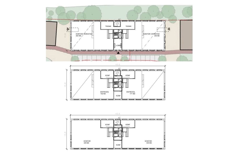
Vi har möjligheten att uppföra en byggnad med en takhöjd om upp till 10 meter, för lätt industri, lager och med anslutande kontor. Byggrätt med en BTA om upp till ca 2 200 kvm. Fastigheten är belägen längs Sjöängsvägen med enkel och smidig access till Norrvikenleden och E4:an.
Inom 3 minuters gångväg nås Norrvikens pendeltågsstation och intill fastigheten finns mycket goda parkeringsytor.
Ekonomi
Kontraktlängd: Förhandlingsbart
Kontrakttyp: Förstahandskontrakt
Tillträde: Enligt överenskommelse
Omgivning
Omgivning/natur: Precis intill finns vackra skogs- och strövområden. Sjön Norrviken ligger tre minuter bort med härliga badplatser sommartid och en plogad skridskobana vintertid. Du kan inte hitta bättre möjligheter för lunchmotion eller promenadmöten! Bostäder i närheten garanterar också att området är levande och har en bra infrastruktur.
Parkeringsmöjligheter/garage: Här finns gott om parkering för besökande och medarbetare. Företag kan också hyra egna parkeringsplatser.
Skyltläge: Mycket god exponering mot Norrviksleden.
Sällan har ett så naturnära läge även så förstklassiga kommunikationer.
Med buss: Gott om bussförbindelser tar dig snabbt och smidigt till/från City med en tät tidtabell.
Med pendeltåg: Norrvikens pendeltågsstation ligger endast knappa fem minuters bort till fots. Restid till Stockholm C: 20 minuter.
Med bil: Direkt anslutning till E4, Rotebroleden och Norrortsleden. Arlanda flygplats nås inom 20 minuter.