Mitt i Hagastadens framväxande life science-kluster, ovanpå E4:an, har Atrium Ljungberg färdigställt "Life City" - en helt ny fastighet med fokus på affärsutveckling och service.
Visionen är en scen för näringsliv, forskning, vård och omsorg, där företag får tillgång till all den dynamik och kompetens som nu samlas inom ett begränsat område. I huset hittar du toppmoderna konferens- och kontorslokaler, restauranger och ett pulserande flöde av människor som bidrar till husets unika atmosfär.
En öppen och publik bottenvåning, cykelparkering under tak samt 120 garageplatser är några exempel på husets höga servicenivå.
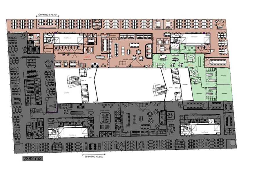
På våning 4 hittar du 1 862 välplanerade kvadratmeter redo att flyttas in i omgående. Lokalen rymmer mindre och större mötesrum, ett multifunktionellt kök, plats för ca 150 arbetsplatser samt en privat wellnessavdelning med tre träningslokaler, dusch/omklädningsrum, massagerum och hobbydel med lounge och bar (grönmarkerat på ritningen). Dessa ytor går även att konverteras till kontor eller mötesrum.
Fastigheten är certifierad enligt BREEAM Outstanding vilket ställer de högsta kraven på miljö och hållbarnet.
Bekvämligheter
I fastigheten finns en bemannad servicedesk som hjälper till med det mesta, ex bokning av konferensrum, catering, taxi mm. Fastigheten innheåller en konferensavdelning - café - restaurang - garage - cykelparkering - omklädningsrum med dusch.
Kommunikationer
Pendeltåg station Stockholm Odenplan, uppgång Vanadisvägen 650 m, T-bana S:t Eriksplan ca 850 m, Buss 3, 6, 58, 77, 507, 598, 697 och flygbussarna finns ca 50 meter från entrén. Bil direktaccess E4/E20, och även cykelbana utanför fastigheten. (Tunnelbanas gula linje, station Hagastaden, uppgång Torsplan 50 m färdigställs 2028).