Passa på att etablera er verksamhet i hjärtat av växande Staffanstorp! Denna kontorslokal har ett centralt läge med gångavstånd till Bråhögsbadet och grönområdet Balders Hage. Här finns även flera restauranger och butiker i närheten, och smidig tillgång till stadens utfarter. Möjlighet att hyra egna parkeringsplatser finns. Lokalen erbjuder generöst ljusinsläpp från flera håll och är flexibel, med möjligheten att anpassa och dela av utrymmet efter behov.
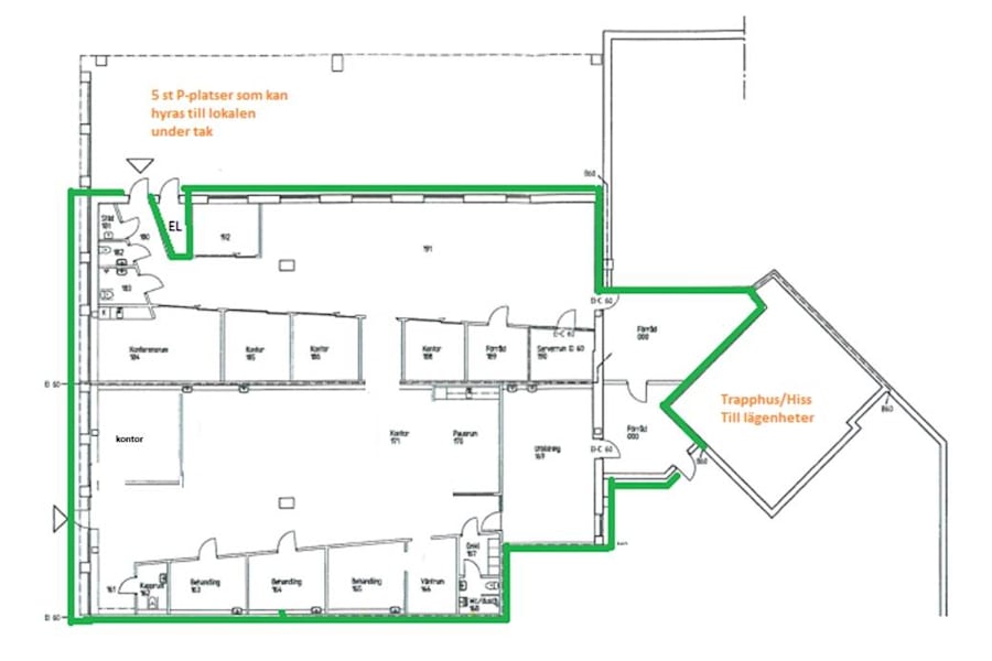
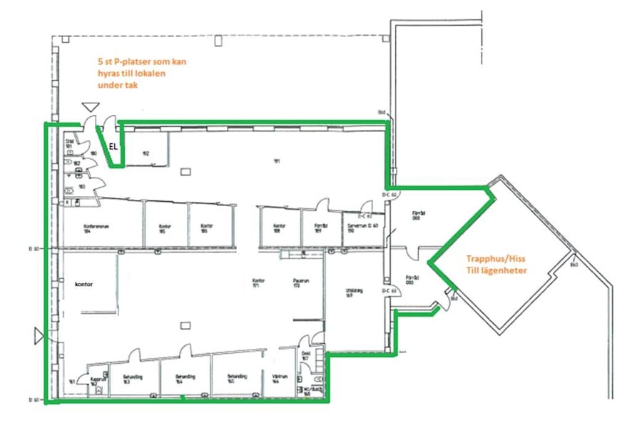
Ytor/Planlösning
Öppen Planlösning.
Övrig information
Croisette Real Estate Partner har erhållit förmedlingsuppdrag avseende lokalen som beskrivs i detta informationshäfte. Informationen är till största del inhämtad från Fastighetsägaren och eller Hyresgästen. Croisette AB och dess dotterbolag (”Croisette”) ansvarar inte för riktigheten i informationen. All information som är av relevans skall kontrolleras av en eventuell hyresgäst och varken Fastighetsägaren, Hyresgästen eller Croisette kan hållas ansvarig vid felaktigheter i detta informationshäfte.
Ekonomi
Tillträde: Efter överenskommelse
Omgivning
Omgivning/natur: Närhet till grönska och natur.
Företag i närheten: Mawii Sushi & Pokebowl, TG Sportsbar, Kronans Apotek, Sparkbanken Skåne, Staffanstorps Bibliotek, Systembolaget med flera.
Parkeringsmöjligheter/garage: Finns att hyra på fastigheten.