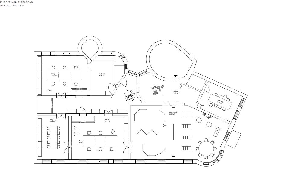
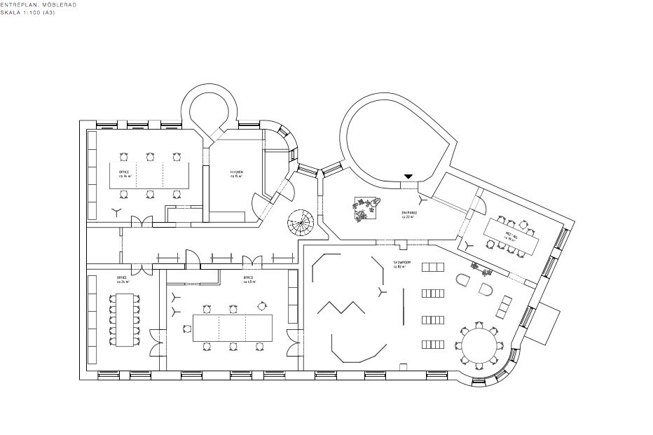
Torstenssonsgatan 4 erbjuder vi nu en lokal högt upp i huset om totalt ca 300 kvm. Lokalen erbjuder stora öppna ytor samtidigt som den håller den fina sekelskiftescharmen som förväntas. Med balkong i hörnläge och en välplanerad rumsindelning så har du en väldigt flexibel lokal. En trevlig möjlig extern yta med mötesrum, showroom och entréyta. Längre in i lokalen finns mer arbetsyta, WC med dusch samt pentry med tillhörande möjlig sittyta.
Tillträde enligt överenskommelse.: Avtalstid 3 år.
Varmt välkommen på visning!
Ekonomi
Kontraktstyp: Första hand Kontraktslängd: 3 år Uppvärmning: 100 El: Eget abonnemang Moms: Moms tillkommer Deposition: 3-6 mån
Bekvämligheter
Hiss, Internet: Fiber, Ett flertal restauranger i närområdet på Narvavägen, Riddargatan och Storgatan. Ica på Riddargatan finns runt hörnet. Busstrafik och spårbunden trafik från Djurgårdsbron, ca 100 meter från lokalen.
Utförande
Byggår: 1897 Antal våningar: 5 Våningsplan: 4
Kommunikationer
Buss: Innerstadsbussar från Djurgårdsbron Spårvagn: Tvärbana från Djurgårdsbron ca 100 meter bort från fastigheten.