Lokalen är belägen på 1 trappa och lokalen nås vi det gemensamma trapphuset. Huset har genomgått en större restauering där orginaldetaljer har sparats från byggåret 1928. Takhöjden har bevarats genom att installera synlig ventilation vilket gör att kontoret känns ljust och rymligt. Möjlighet finns att dela av lokalen i två mindre kontor.
Planlösningen erbjuder ett kontor med rumsindelning samt pentry toalett. Strategiskt bra läge nära Göteborg men utanför tullarna. Möjlighet till parkering i anslutning till fastigheten.
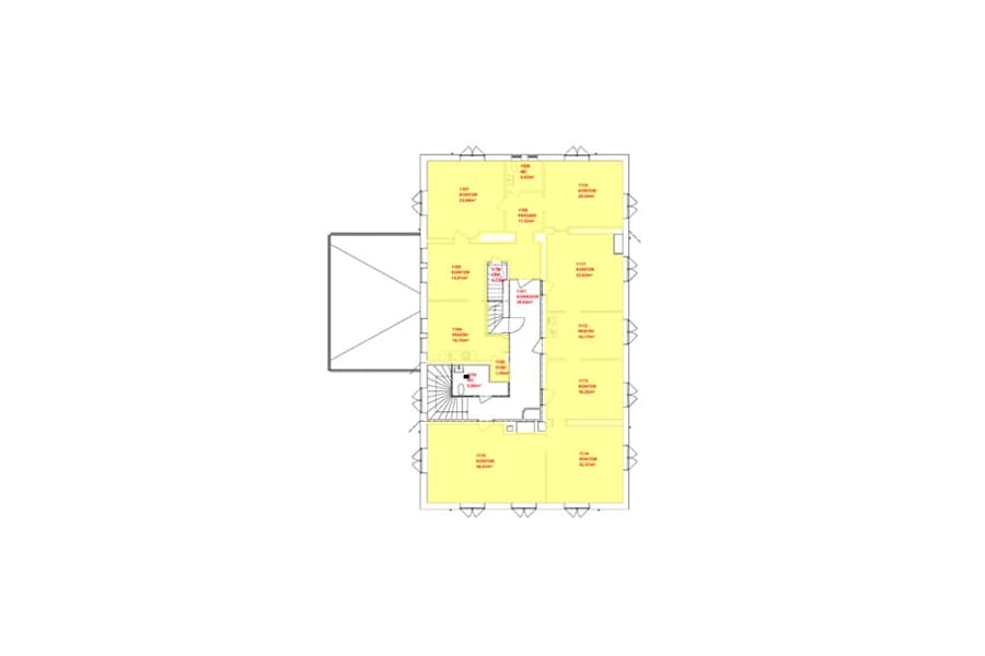
Ytor/Planlösning
Planlösning:
Denna lokalen om 112 kvm har två möjliga ingångar från trapphuset samt dubbla pentryn vilket gör att den kan delas upp i två delar. Lokalen ebjuder fyra kontorsrum
Bekvämligheter
Ett flertal lunchrestauranger finns på gångavstånd och bara 5 min bort finns köpcentrumet Allum med ca 86 butiker och restauranger.
Omgivning
Fastigheten ligger i det väl etablerade verksamhetsområdet Utby nära E20 och ca 6 km öster om centrala Göteborg.
I närområdet finns det populära utflyktsmålet Bergsjön med badsjö och vandringsleder.
Det direkta närområdet präglas av lager-, verkstad och kontorsverksamhet med en blandning av många olika verksamheter
Kommunikationer
Bra kommunikationer till centrala Göteborg som nås på ca 20 min med buss.
Lättillgängligt även med bil med närheten till E20.