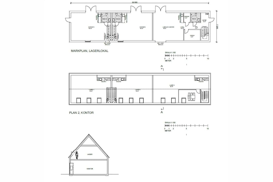
På Väståkravägen erbjuds flexibla lokaler i olika storlekar. Här finns möjligheten att anpassa lokalerna efter verksamhet. Det finns även kontorsplatser att hyra i öppet landskap.
Lokalerna som finns tillgängliga är 5 olika enheter från 134kvm upp totalt 284 kvm. Lokalen består av lageryta med port, samt en trappa som leder er upp till konotrsytorna på våning 2. Faciliteter som toalett och pentry finns.
Övrig information
Croisette Real Estate Partner har erhållit förmedlingsuppdrag avseende lokalen som beskrivs i detta informationshäfte. Informationen är till största del inhämtad från Fastighetsägaren och eller Hyresgästen. Croisette AB och dess dotterbolag (”Croisette”) ansvarar inte för riktigheten i informationen. All information som är av relevans skall kontrolleras av en eventuell hyresgäst och varken Fastighetsägaren, Hyresgästen eller Croisette kan hållas ansvarig vid felaktigheter i detta informationshäfte.
Ekonomi
Tillträde: Enligt överenskommelse
Omgivning
Parkeringsmöjligheter/garage: Det finns goda parkeringsmöjligheter på tomten.