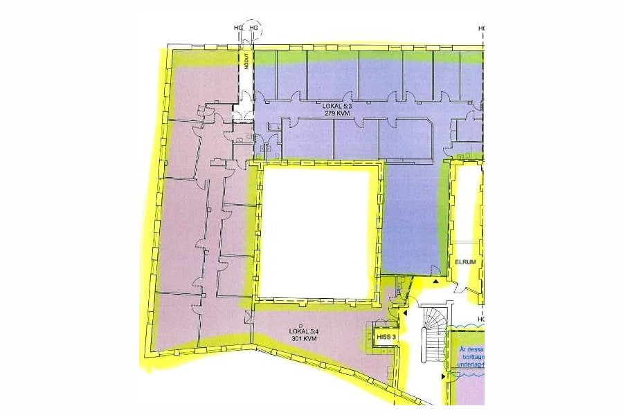
Letar du efter det perfekta kontoret för ditt företag? Vi har nöjet att erbjuda en ljus och rymlig kontorslokal på 580 m² med både mindre kontorsrum samt större salar med väl tilltagen ventilation på eftertraktade Finnbodavägen 2 alldeles intill Danvikstull och Stockholms inlopp. Lokalen är flexibel och kan enkelt anpassas efter era behov. Den kan också delas av till två separata lokaler om 301 m2 och 279 m2
Lokalen
Storlek: 580 m²
Planlösning: Rumsindelad med möjlighet till anpassning
Modern standard: Ljus interiör och stora fönster som skapar en inspirerande arbetsmiljö
Faciliteter: Flertal toaletter toaletter och kök med matplats
Lokalen passar perfekt för både mindre och medelstora företag som söker en attraktiv och flexibel arbetsplats i en trivsam miljö.
Skulle man vilja bedriva skolverksamhet så är lokalen förberedd för detta.
Fastigheten
Fastigheten är en modern och välunderhållen byggnad med hög standard. Den erbjuder:
Representativ entré och gemensamma utrymmen
God tillgång till parkeringsplatser för både hyresgäster och besökare
Energismarta lösningar som bidrar till låga driftkostnader
Tillgång till hiss, restaurang och andra bekvämligheter som gör vardagen enklare
Fastigheten har olika storlekar på kontor (10 m2 - 1400 m2) så hör gärna av er om ni har behov för större eller mindre ytor.
Läget
Finnbodavägen ligger i hjärtat av Nackas växande företagsområde, omgiven av grönska och med en fantastisk utsikt över Stockholms inlopp. Här får ni en inspirerande arbetsmiljö och ett läge som är både nära city och naturskönt. Slussen, Sickla och Hammarby sjöstad är endast en promenad bort.
Kommunikationer
Buss: Endast 8 minuter till Slussen med direktbussar som går regelbundet.
Båt: Smidiga pendlingsmöjligheter med SL:s pendelbåtar som trafikerar Nacka Strand, Nybrokajen och Ropsten.
Bil: Enkel tillgång till Värmdöleden/E20 med parkeringsmöjligheter nära lokalen.
Cykel och gång: Nära till vackra cykel- och promenadvägar längs vattnet.
Service och närområde
I närområdet hittar ni ett brett utbud av service:
Restauranger och caféer: Perfekt för lunchmöten eller en paus i arbetet.
Gym och träningsanläggningar: För hälsosamma pauser under arbetsdagen.
Butiker: Närhet till både mindre butiker och köpcentrum.
Fastigheten har olika storlekar på kontor (10 m2 - 1400 m2) så hör gärna av er om ni har behov för större eller mindre ytor.
Varmt välkommen på visning.