Logga in
  • Lediga lokaler
  • Västra Götaland län
  • Kungälv kommun
Kontorslokal på Västra Gatan 71, Kungälv
Kontorslokal på Västra Gatan 71, Kungälv – bild 2
Kontorslokal på Västra Gatan 71, Kungälv – bild 3
Kontorslokal på Västra Gatan 71, Kungälv – bild 4

Västra Gatan 71

LEDIGT KONTOR 135 kvm

442 31 Kungälv
Kontor
Storlek
135 m²
Hyra
Kontakta hyresvärd
Tillträde
Enligt överenskommelse
Beskrivning
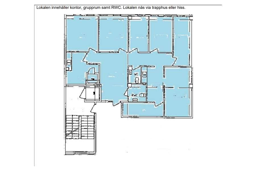
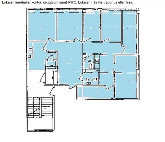
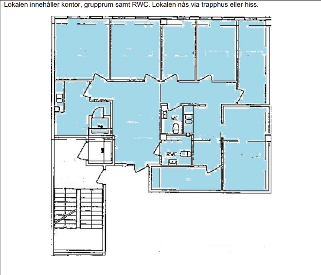
Kontorslokal på 135 kvm belägen centralt i Kungälv. Lokalen är på 4.e våningen med utsikt, och hiss finns. Lokalen är tillgänglig 1/6 2024
Dokument
XK ritning

Kontakta Sigillet Fastighets AB (publ)

Victor Fridén
Sigillet Fastighets AB (publ)
Sigillet Fastighets AB (publ)

Liknande lokaler

  • Kontorslokal på Bultgatan 40, Kungälv
    Bultgatan 40 100 - 700 m²
    440 42 Kungälv
    Kontor
    Industri / Verkstad
    ...
    Lokal i Rollsbo i Kungälv
  • Kontorslokal på Bultgatan 40B, Kungälv
    Bultgatan 40B 98 m²
    442 40 Kungälv
    Kontor
    Kontorslokal om 98 kvm i Rollsbo industriområde - Bästa skyltläget mot E6:an
  • Butikslokal på Hollandsgatan 4, Ytterby
    Hollandsgatan 4 149 m²
    442 50 Ytterby
    Butik
    Industri / Verkstad
    Kontor
    Nyproduktion i Ytterby Park
  • Kontorslokal på Hollandsgatan, Ytterby
    Hollandsgatan 149 m²
    442 50 Ytterby
    Kontor
    Butik
    Upptäck Ytterby Park – nyproducerade lokaler med ett fantastiskt skyltläge vid Marstrandsvägen. Vi söker aktörer inom hälsa och vård. Här får du moderna lokaler i ett växande område med närhet till Kungälv centrum. Ta chansen att etablera er i ett växande område, med Ytterbys bästa läge!
  • Visa alla lediga lokaler

    Stockholm

    • Lediga Kontorslokaler i Stockholm
    • Lediga Co-work i Stockholm
    • Lediga Lagerlokaler i Stockholm
    • Lediga Industrilokaler i Stockholm

    Göteborg

    • Lediga Kontorslokaler i Göteborg
    • Lediga Co-work i Göteborg
    • Lediga Lagerlokaler i Göteborg
    • Lediga Industrilokaler i Göteborg

    Malmö

    • Lediga Kontorslokaler i Malmö
    • Lediga Co-work i Malmö
    • Lediga Lagerlokaler i Malmö
    • Lediga Industrilokaler i Malmö
    Om
    Om ossVad är Portally?Q&AKontaktPortallyPodden
    Information
    IntegritetVillkorCookie PolicyFörmedlingsvillkorBloggSidkartaFörnya Cookies
    Följ oss
    Instagram Linkedin