Välkommen till Vikhems Bygata 108, där en spännande möjlighet väntar på dig att förverkliga dina restaurang- och cafédrömmar! Denna fantastiska lokal, som även kan omvandlas till ett charmigt café, är perfekt belägen i denna pulserande del av Staffanstorp.
Med en yta på 93 kvm och tillgång till förråd och personalutrymme i källarplanet, erbjuder denna nybyggda lokal den idealiska miljön för att skapa en inbjudande och trivsam atmosfär för dina gäster.
Ventilation för kök är redan installerat, vilket ger dig möjlighet att omedelbart sätta igång med din kulinariska kreativitet. För den som önskar ta över befintliga kökskåpor från den nuvarande hyresgästen finns möjligheten att köpa loss dem.
Men det är inte bara den inre delen av lokalen som imponerar - utanför erbjuds en trevlig uteservering där dina kunder kan njuta av soliga dagar och friska luften. Med närhet till Staffansvallen och Vendelparken är din restaurang eller café perfekt belägen för att locka till sig både lokalbefolkning och besökare samt Nordic Wellness som nära granne.
Tack vare den enkla påfarten till väg 11 är din lokal lättillgänglig för både bilburna gäster och förbipasserande. Och med områdets snabba tillväxt och expansion, är detta det perfekta tillfället att etablera dig i en blomstrande gemenskap.
Missa inte chansen att bli en del av Staffanstorps spännande restaurang- och caféscen! Kontakta oss redan idag för att boka en visning och låt oss hjälpa dig att förverkliga dina drömmar!
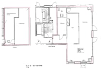
Ytor/Planlösning
Öppen planlösning förberedd för restaurang.
Övrig information
Croisette Real Estate Partner har erhållit förmedlingsuppdrag avseende lokalen som beskrivs i detta informationshäfte. Informationen är till största del inhämtad från Fastighetsägaren och eller Hyresgästen. Croisette AB och dess dotterbolag (”Croisette”) ansvarar inte för riktigheten i informationen. All information som är av relevans skall kontrolleras av en eventuell hyresgäst och varken Fastighetsägaren, Hyresgästen eller Croisette kan hållas ansvarig vid felaktigheter i detta informationshäfte.
Ekonomi
Tillträde: Efter överenskommelse
Utförande
Byggår: 2023
Omgivning
Omgivning/natur: Vackert och naturskönt med nära till parker och grönska.
Företag i närheten: Nordic Wellness, Engelska Skolan, Norlandia Förskola, med flera