Detta stilfulla, moderna kontor i två våningsplan erbjuder en exklusiv arbetsmiljö, där en interntrappa smidigt förbinder våningarna. Lokalen har ett behagligt inomhusklimat och erbjuder komfortkyla.
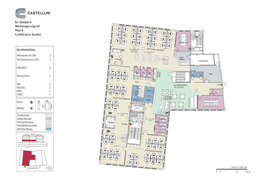
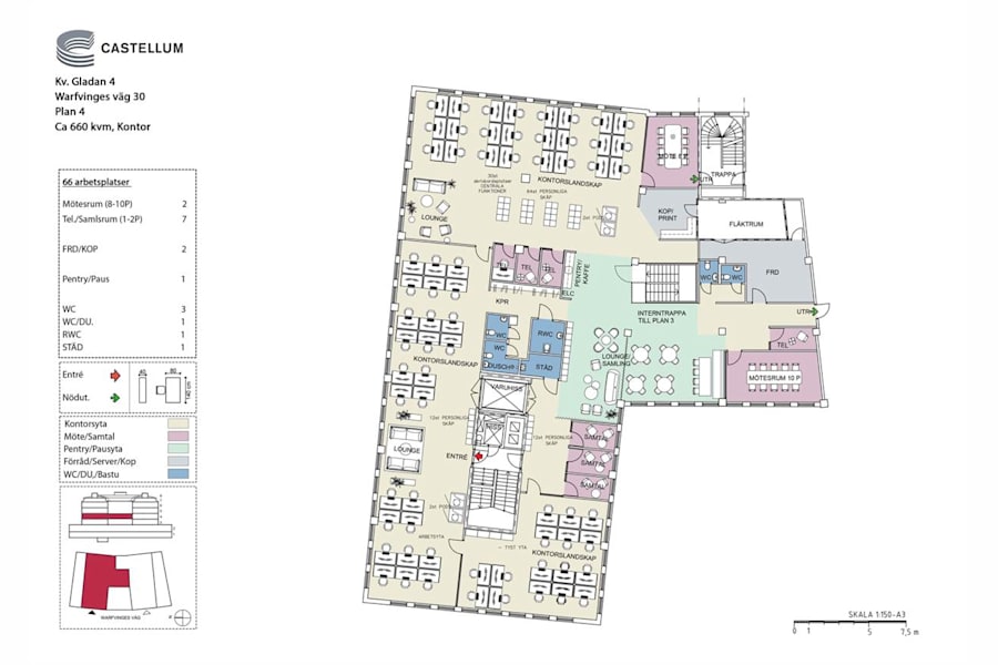
Planlösningen består av öppet kontorslandskap, rumsindelade kontor och många mötesrum.
För dig som hyresgäst är lokalen anpassningsbar för upp till 150 arbetsplatser.
I anslutning till lokalen finns en terrass där du som hyresgäst kan avnjuta en god kopp kaffe eller en härlig lunch.
Vill du kunna träna under lunchen? Då finns gymmet Body Under Construction i grannhuset, SATS och Nordic Wellness och i området och i fastigheten finns gemensamma omklädningsrum med duschar.
Tar du cykeln till jobbet kan du lätt parkera den i ett låst cykelrum i fastigheten. Och tar du bilen till jobbet finns garage i fastigheten och i grannfastigheterna. Där finns även laddplatser för din bil.
Funderar du på lunchalternativ? Då behöver du inte gå långt. Mitt emot huserar restaurangen Eatery som erbjuder frukost, lunch, fika, afterwork och catering.
Inte nog med att det finns tunnelbana ett par minuter från fastigheten. Bussar förstärker ytterligare kommunikationen och dessa går till Hornstull, Sergels torg, Odenplan och Nacka C.
Välkommen på visning!
Ytor/Planlösning
NO: Den moderna lokalen med interntrappa erbjuder öppna arbetsytor samt mötesrum i flera storlekar. Pausytor samt lounge finns på båda våningsplan. Mindre samtalsrum för de som vill sitta enskilt finns på övre plan. Praktiska ytor som förråd, kopieringsrum, städförråd samt tillgång till varuhiss finns även det i lokalen. En stor takaltan finns på nedre plan.
Övrig information
Denna funkisfastighet har genomgått en varsam renovering och erbjuder nu moderna, flexibla kontorslokaler med välkomnande entréer. För enkel pendling finns både garage och gemensamma cykel- och omklädningsrum i byggnaden. Dessutom är fastigheten utrustad med två lastkajer, vilket ger utmärkta förutsättningar för smidiga leveranser.
Ekonomi
Tillträde: Enligt överenskommelse.
Utförande
Våningsplan: 1
Omgivning
Parkeringsmöjligheter/garage: Det finns gott om garageplatser i fastigheten och området. Är du intresserad? Kontakta Corepark på telefonnummer 08-650 02 15.