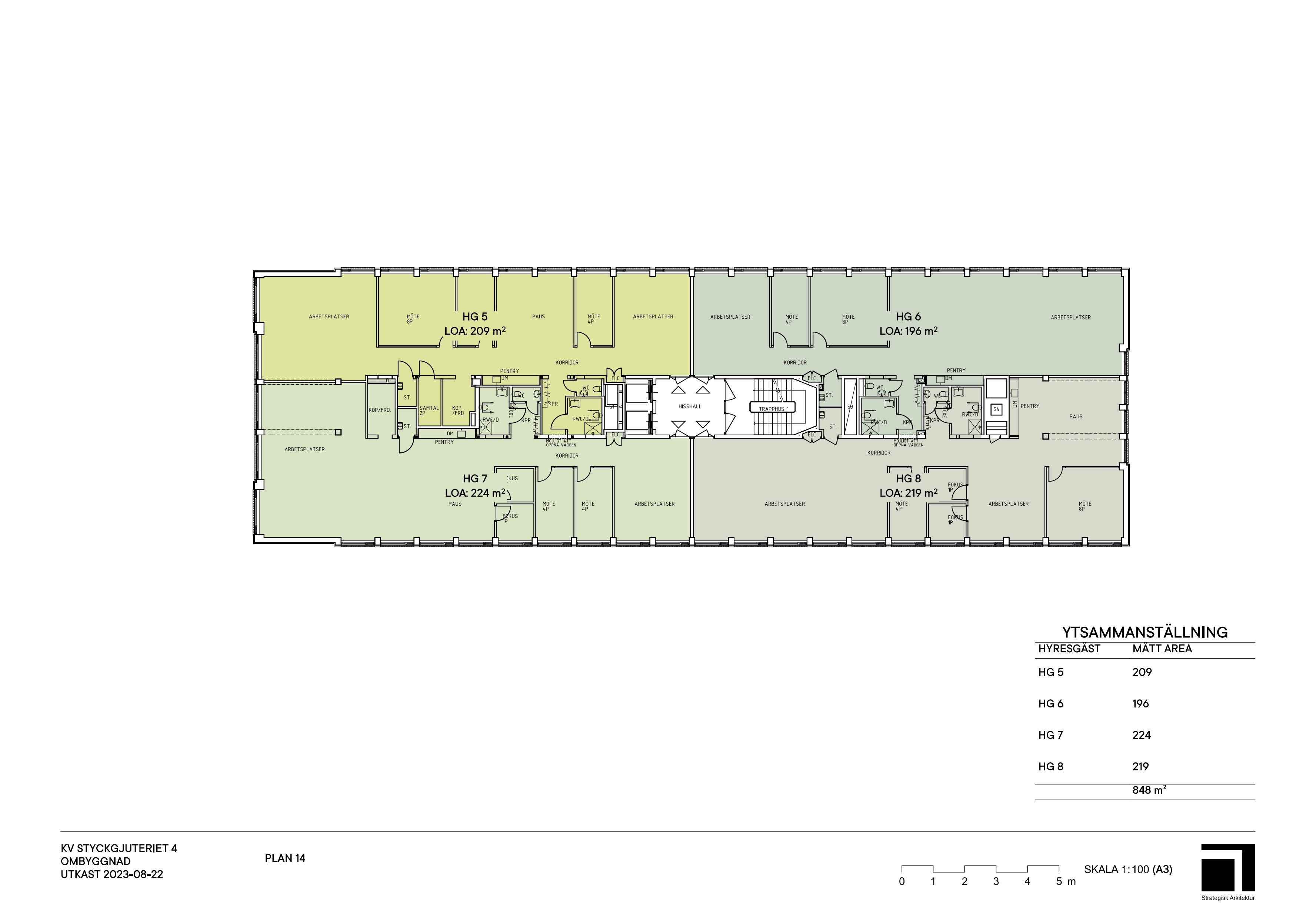
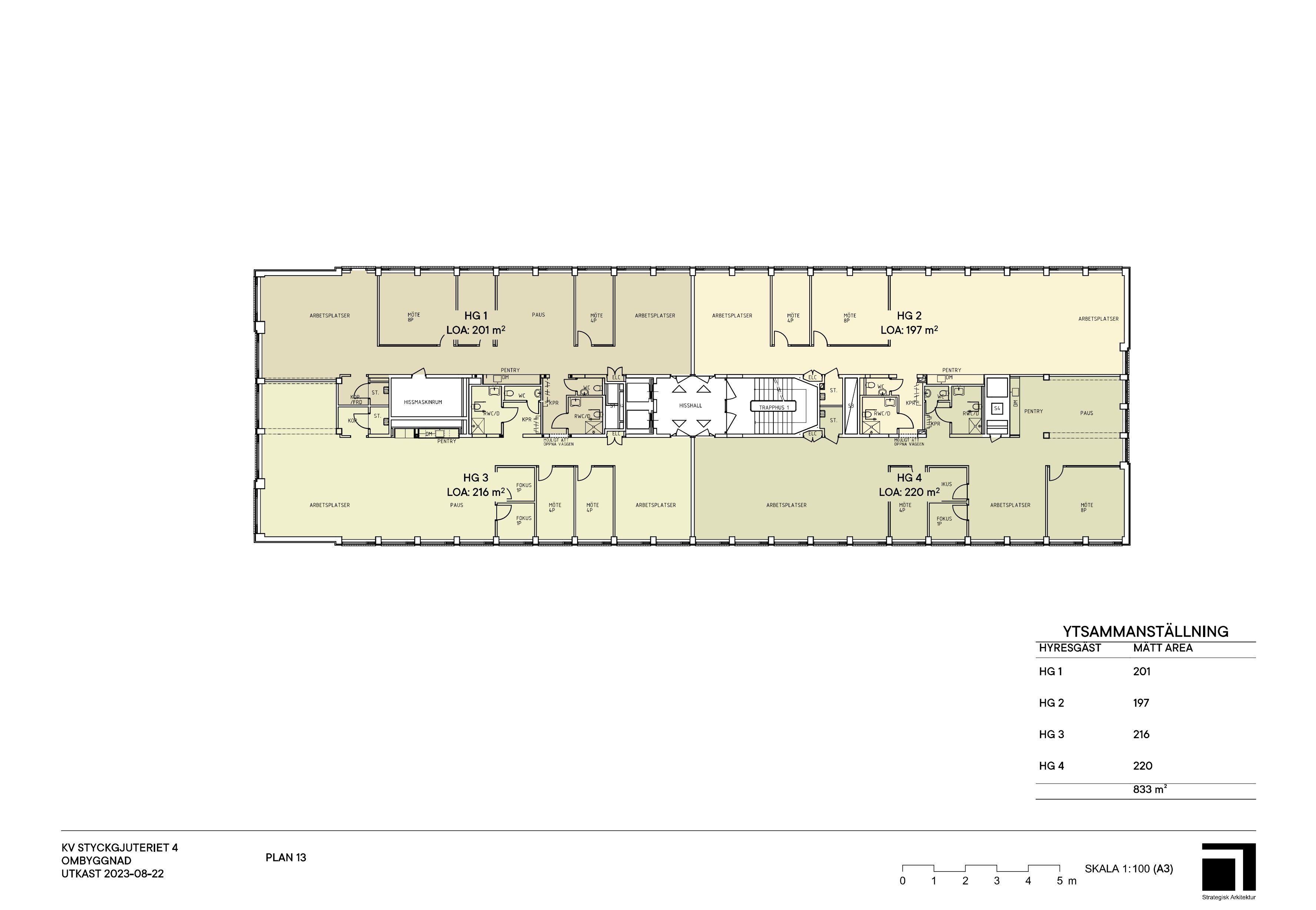
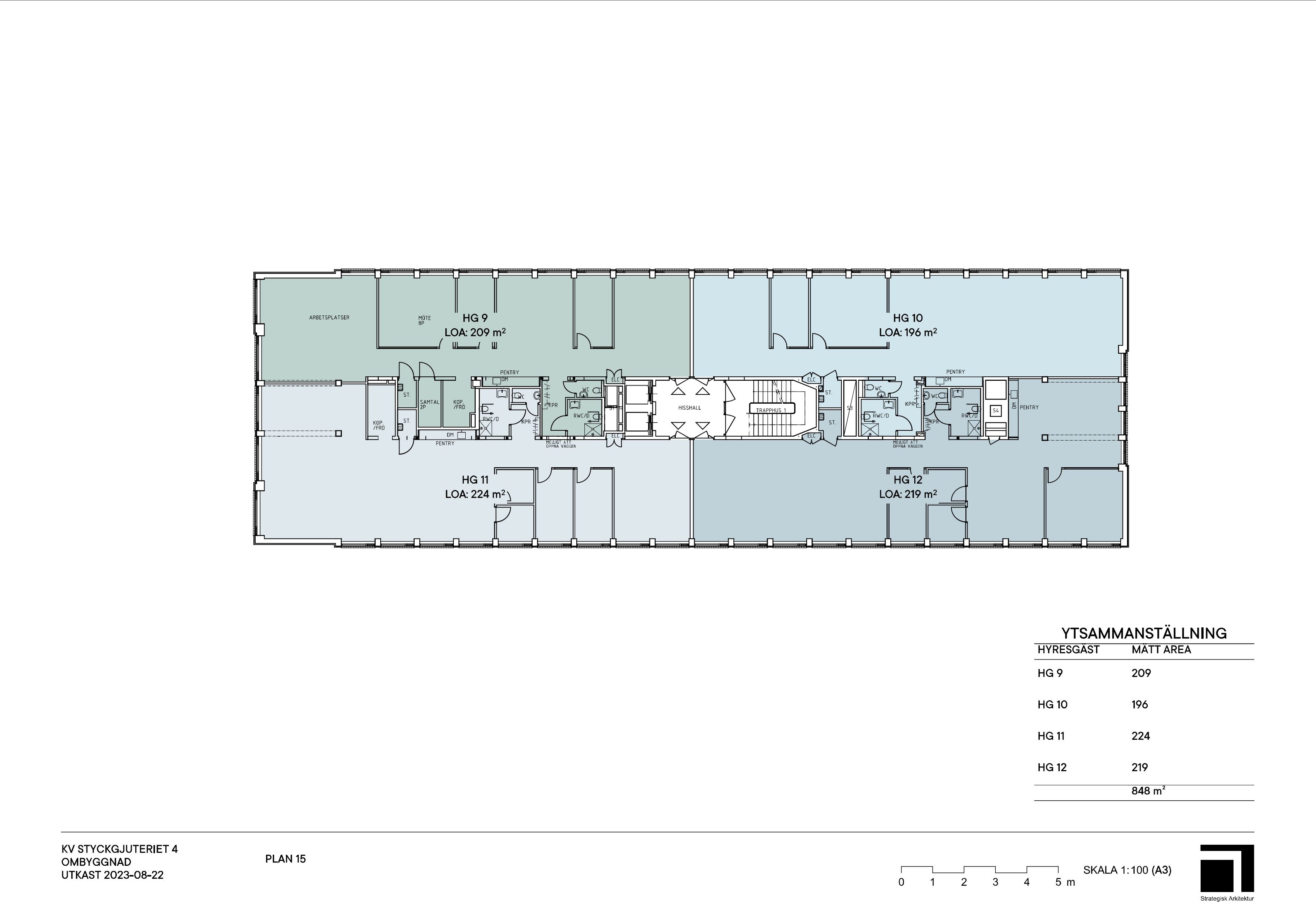
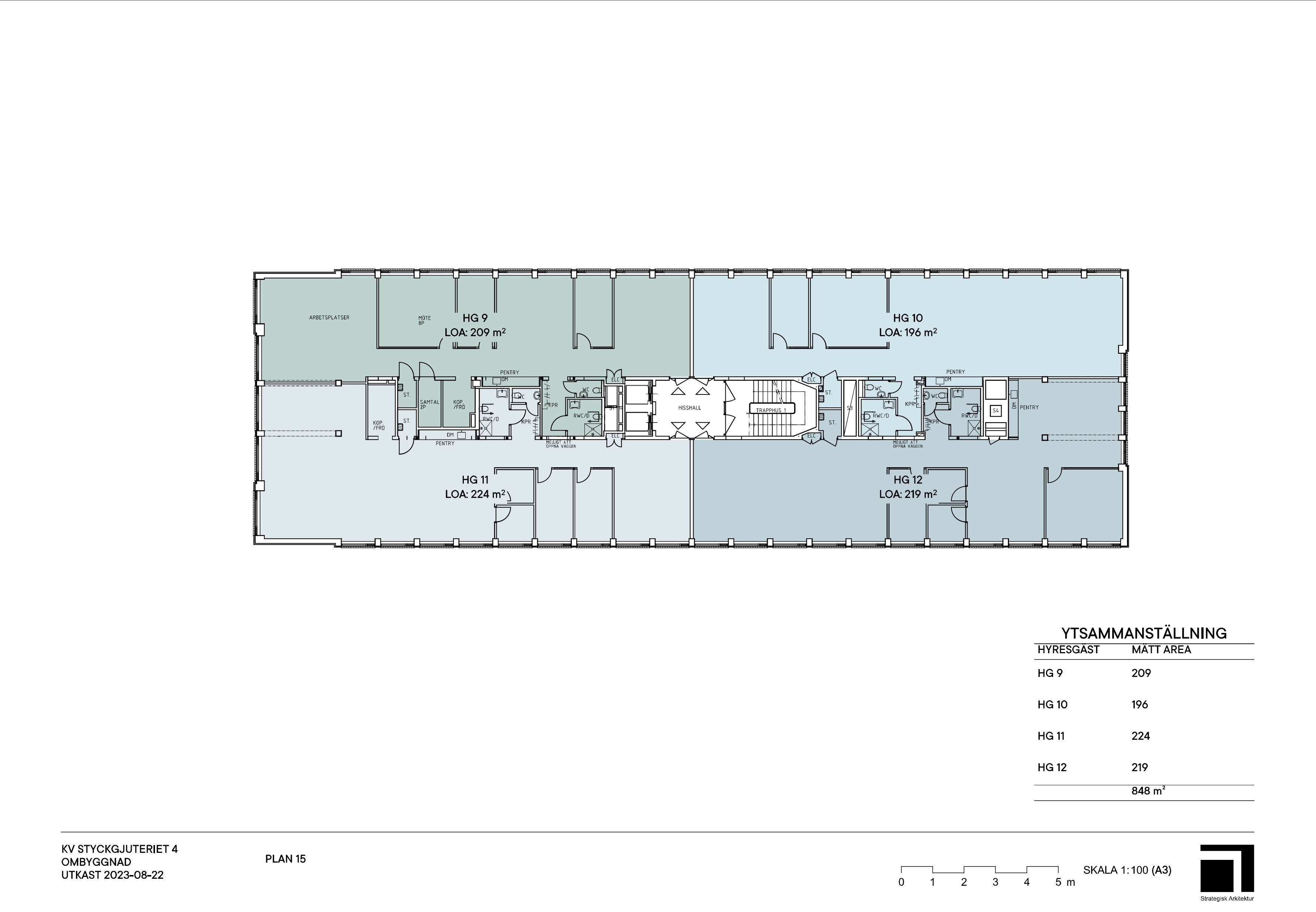
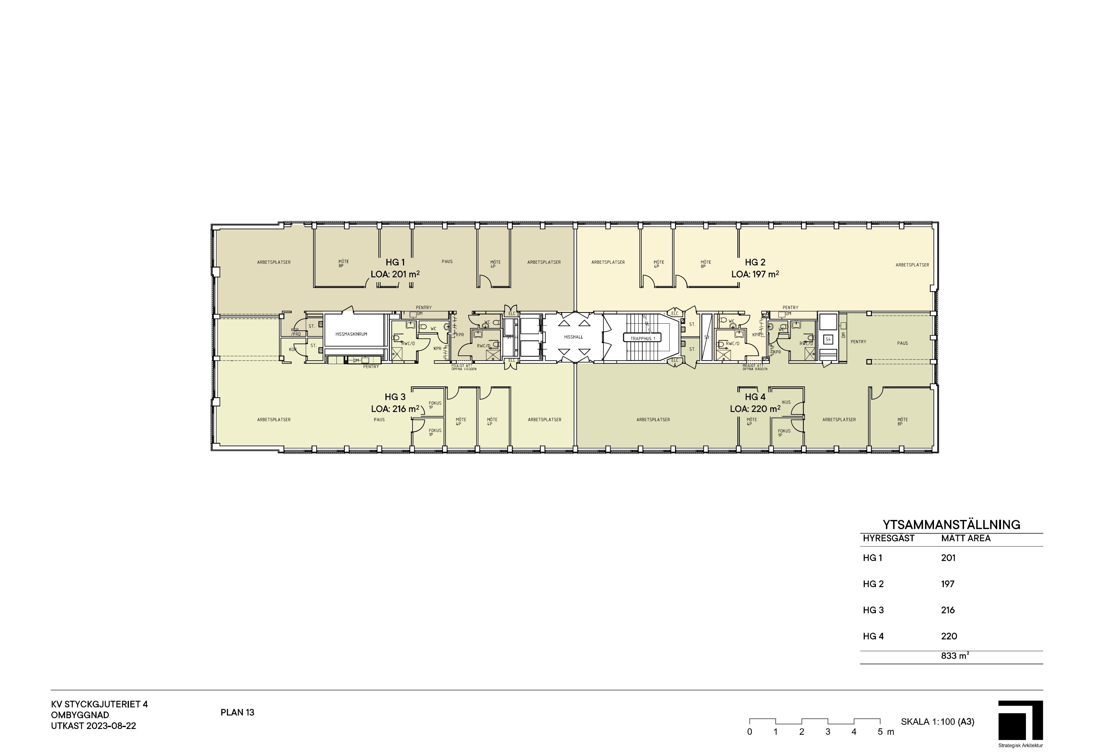
På Wennerbergsgatan 10 ligger Byggmästarföreningens fastighet som nyligen har genomgått en helomfattande renovering av alla fastighetens ytor. Alla kontorsytor har helt nya ytskikt och är redo att tillträda för en ny hyresgäst. Totalt är 3 våningsplan vakanta enligt uppdelning nedan. Ytor hyrs ut från 196 kvm, alt per plan om ca 848 kvm alt total yta upp till ca 2530 kvm.
Våning 2 - 838 kvm. (uppdelning från 196 kvm): Våning 3 - 848 kvm. (uppdelning från 197 kvm): Våning 4 - 848 kvm. (uppdelning från 197 kvm)
Miljöklassning: Breeam in use - Very good
Lokalerna har eftertänksamt renoverats i ett enhetligt koncept med sobra och nordiska materialval. Genomgående trägolv i öppna arbetsytor och heltäckningsmattor i mötesrum. Pentryn med en mörkblå kulör för en extra lyxig känsla och integrerade vitvaror. Våningsplanen går enkelt att antingen dela upp alt kombinera för större sammanhängande lokaler.
Om fastigheten: I entrén möts du av en entré inklädd marmor och ett helt nytt hisspaket. Byggmästartföreningen som även äger fastigheten sitter i markplan. Bredvid entrén har du en bred nedfart till fastighetens garage som även har genomgått en större renovering med håltagning mellan bjälklag för att få till en ramp emellan de 2 våningsplanen. Garageplats erbjuds efter tillgänglighet.
Byggmästarföreningen vill skapa en fastighet som främja bygg och innovation i ett och samma hus!
Varmt välkommen på visning!
Ekonomi
Kontraktstyp: Första hand Kontraktslängd: 3-5 år Uppvärmning: 100 Kyla: 50 El: Eget abonnemang Moms: Moms tillkommer Deposition: 3-6 mån
Bekvämligheter
Garage, Cykelparkering, Hiss, Internet: Fiber, Förråd: Ja, finns i lokalen samt fastigheten, Parkering: Garage finns i två våningsplan i huset
Utförande
Byggår: 1960 Renoveringsår: 2024 Antal våningar: 7 Våningsplan: 3 Ventilation: Mekanisk ventilation med kyla
Kommunikationer
Väg: Snabb access till E4:an norr och södergående riktining. Tunnelbana: T-banans gröna linje från Thordilsplan, ca 6 min promenad Buss: Buss nr 1 stannar utanför entrén på Gjörwellsgatan