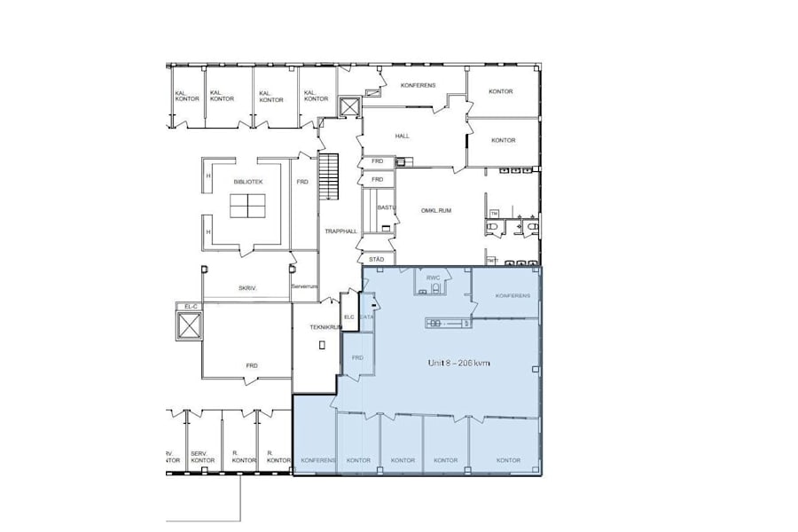
Här erbjuds möjlighet att hyra en flexibel kontorslokal i gott skick på plan två. Planlösningen består av öppet kontorslandskap med möjlighet till 4-6 kontorsplatser, fyra kontorsrum samt konferensrum med plats för 8-10 personer. Faciliteter finns i form av kök/pentry med anknytning till det öppna landskapet samt WC med dusch. Lokalen är utrustad med energibesparande LED-belysning och har genomgått en ytskiktsrenovering 2023, vilket gör den inflyttningsbar omgående.
Byggnaden ligger med fri access utmed Ågatan och det finns goda möjligheter till parkering i anslutning till lokalen. Laddstolpar finns och ett elbilsladdningsprojekt är planerat under 2024, vilket kommer resultera i ytterligare laddstolpar.
Fastigheten är belägen i Sege industriområde med närhet till Arlöv, cirka 5 kilometer norr om centrala Malmö. Läget är optimalt ur logistiksynpunkt med direkt anslutning till E6/E20 och nära anslutning till Inre Ringvägen, E22 samt Västkustvägen. Området präglas av lättindustri, B2B-handel och erbjuder ett enklare serviceutbud av butiker samt lunchrestauranger. Det finns goda kollektivtrafikförbindelser med buss till centrala Malmö.
Ytor/Planlösning
Se planritning bland bilder/PDF.
Ekonomi
Kontraktlängd: Förhandlingsbart
Kontrakttyp: Förstahandskontrakt
Tillträde: Enligt överenskommelse.
Utförande
Fastighetsbeteckning: Spillepengshagen 3
Byggår: 1964
Renoveringsår: 2023
Våningsplan: 2 av 2
Takhöjd: 2,6 m
Omgivning
Företag i närheten: Best Transport, NetonNet, Axfood Sverige, ProBike och StrongPoint Labels
Parkeringsmöjligheter/garage: Fri parkering
Skyltläge: Bra exponering av skyltläge utmed Ågatan
Vägbeskrivning: Direkt anslutning till Inre Ringvägen samt nära anslutning till E6/E20 och E22