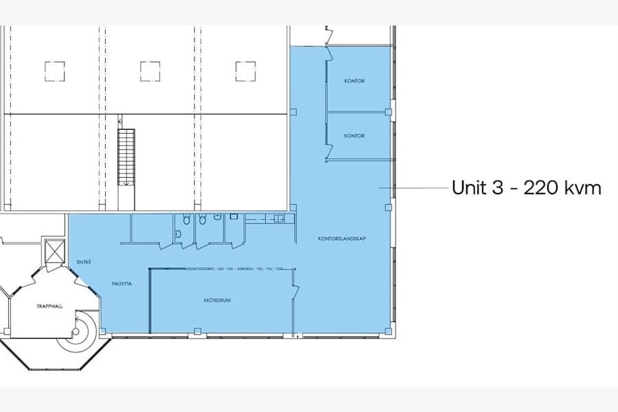
Nu har ni möjlighet att hyra en stilren och högkvalitativ kontorslokal i ett av Malmös mest dynamiska företagsområden. Denna nyrenoverade kontorslokal om 220 kvm, belägen på plan två, erbjuder en perfekt balans mellan öppna arbetsytor, separata kontorsrum och mötesrum – en flexibel lösning för företag med höga krav på både funktion och estetik.
Renoverad för att imponera:
Strategiskt läge med smidig tillgång: Lokalen är strategiskt placerad i Bulltofta industriområde, med enkel access från Flygledaregatan och goda parkeringsmöjligheter precis utanför entrén. Detta är den ideala arbetsplatsen för företag som värdesätter tillgänglighet och en bekväm arbetsmiljö.
Bulltofta industriområde – Ett expansivt företagscentrum:
Kontakta oss redan idag för mer information eller för att boka en visning. Denna moderna och flexibla kontorslokal är redo att bli er nästa arbetsplats!
Ytor/Planlösning
Se bilder/PDF.
Ekonomi
Kontraktlängd: Förhandlingsbart
Kontrakttyp: Förstahandskontrakt
Tillträde: Enligt överenskommelse
Utförande
Fastighetsbeteckning: Höjdmätaren 1
Byggår: 1990
Renoveringsår: 2022
Våningsplan: 2 av 2
Omgivning
Omgivning/natur: Närhet till Bulltofta rekreationsområde med stora grönområden
Företag i närheten: XXXLutz, Ahlsell, Swedol, Audi och Volkswagen
Parkeringsmöjligheter/garage: Goda parkeringsmöjligheter precis utanför entrén
Skyltläge: Bra exponering av skyltläge mot Flygledaregatan
Vägbeskrivning: Direkt anslutning till Inre Ringvägen med anslutning från E6/E20, E22 och E65