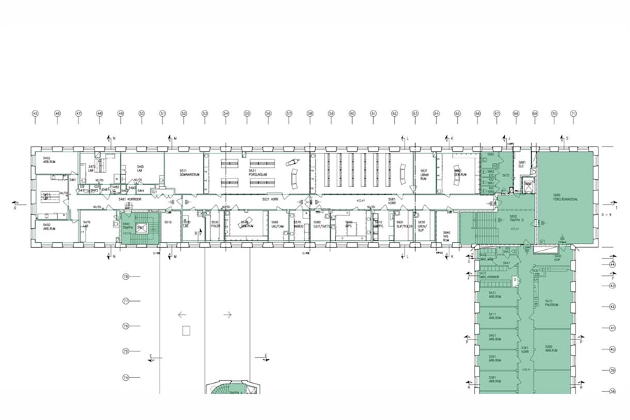
Välkommen till denna yta på totalt 1 350 kvm fördelat på två plan i Tandvårdshögskolan i Malmö. Lokalen består av både kontorsutrymmen och labblokaler, vilket gör den idealisk för verksamheter inom tandvård eller relaterade branscher.
Med ett strategiskt läge i Malmö får du nära till såväl akademisk miljö som andra företag och nätverk. Lokalen är flexibel och kan anpassas för olika typer av verksamheter.
Bra kommunikationer och parkeringsmöjligheter finns i området.
Kontakta oss för mer information eller för att boka en visning!
Byggår: 1948
Planlösning: Ytan är fördelad på två olika plan.
På Plan 4 (ca 690 kvm) finns moderna kontorslokaler samt specialanpassade labbsalar för tandvård.
Plan 5 (ca 660 kvm) består huvudsakligen av labbsalar och lektionssalar.
Ytorna passar perfekt för företag och organisationer inom hälsovård, forskning och utbildning, och kan hyras både gemensamt eller separat beroende på behov.
Omgivning
Parkeringsmöjligheter/garage: Finns i anslutning till byggnaden.
Närservice: I närheten finns flera restauranger och caféer som erbjuder ett brett utbud av matalternativ, perfekt för lunch eller fika. För den som behöver göra inköp ligger en mataffär inom gångavstånd, vilket gör det lätt att handla vardagsvaror. Dessutom finns flera andra servicebutiker i området, som exempelvis apotek, posttjänster och frisörer, vilket gör att du har allt du behöver nära till hands.