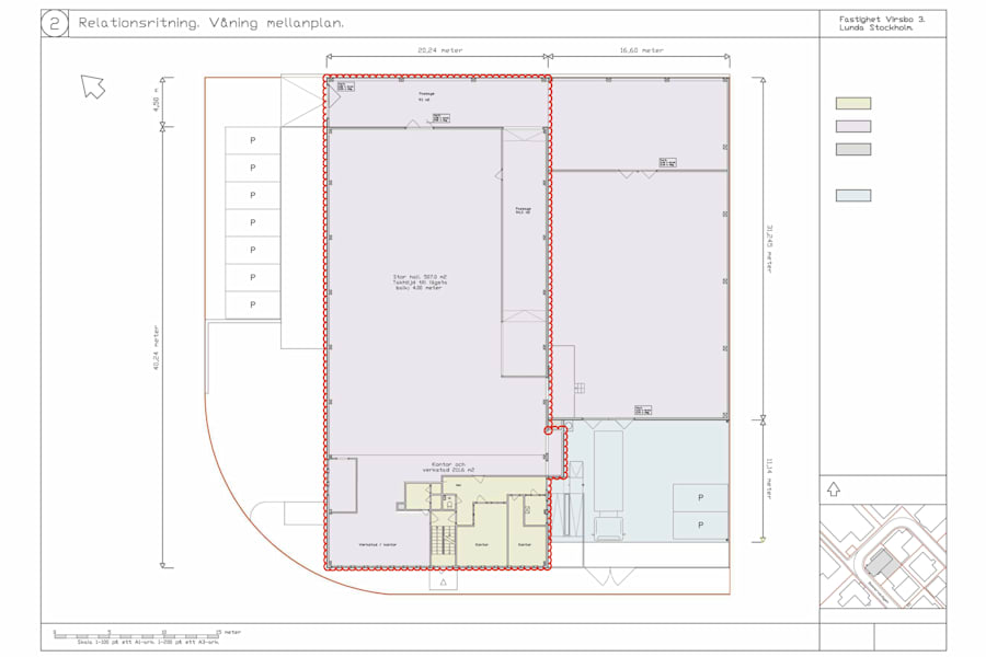
Denna flexibla industrilokal omfattar totalt cirka 856 kvm, fördelat på industri-/verkstadsyta och cirka kontors- och personalutrymmen. Planlösningen är välbalanserad och erbjuder en tydlig uppdelning mellan verksamhetsytor och administrativa funktioner, med goda möjligheter att anpassa lokalen efter olika behov.
Industridelen utgörs av en rymlig stor hall med tillhörande verkstads- och förrådsytor, vilket skapar effektiva flöden och generösa arbetsytor för produktion, lager eller liknande verksamhet. Lokalen nås från gatan via port med möjlighet till direkt infart genom passage in till den stora hallen, vilket ger smidig åtkomst och underlättar den dagliga logistiken.
Kontorsdelen är avskild från industridelen och erbjuder funktionella kontorsrum samt personalutrymmen i en sammanhållen och praktisk disposition, med närhet till verksamheten utan att störa den operativa driften.
Helheten präglas av god tillgänglighet, funktionell utformning och flexibilitet, vilket gör lokalen väl lämpad för industri-, verkstads- eller lagerverksamhet som ställer krav på effektiva ytor och enkla flöden.
Fastigheten är belägen i Spånga/Lunda industriområde, ett etablerat och sammanhängande företagsområde med inriktning mot lager-, verkstads- och serviceverksamheter. Området har god tillgänglighet till E18 samt anslutning till E4, vilket underlättar transporter i flera riktningar. Bussförbindelser finns i närområdet med anslutning till Spånga pendeltågsstation, varifrån Stockholm City nås på cirka 15 minuter.
Ytor/Planlösning
I Lunda industriområde finns ett brett utbud av verksamheter inom lager, logistik, transport, verkstad, service och teknisk verksamhet, vilket skapar ett tydligt företagskluster med likartade behov och förutsättningar.
Möjlighet till skyltning i anslutning till lokalen kan diskuteras efter överenskommelse och enligt gällande skyltprogram och regler för området.
Fastigheten är belägen i Spånga industriområde med god tillgänglighet till E18, vilket ger smidig anslutning mot såväl centrala Stockholm som väster- och norrort. Även E4 nås inom kort avstånd, vilket underlättar transporter i flera riktningar.
Områdets tillgänglighet kommer ytterligare att stärkas i samband med utbyggnaden av Förbifart Stockholm, vilket på sikt förbättrar framkomligheten mellan norra och södra Stockholm samt till regionens större trafikleder.
Bussförbindelser finns i närområdet med anslutning till Spånga pendeltågsstation, varifrån restiden till Stockholm City uppgår till cirka 15 minuter.
Parkeringsmöjligheter finns på fastigheten med cirka 10–15 parkeringsplatser. Ytterligare parkeringsmöjligheter finns längs gatan i närområdet.
I närområdet finns ett gott utbud av välbesökta lunchrestauranger anpassade för verksamheter i området. Service och handel finns även i Spånga centrum, som nås på kort avstånd, samt i närliggande områden. I omgivningen finns även inslag av grönområden som bidrar till en trevligare arbetsmiljö.
Övrig information
Denna lokal utgör en del av en större fastighet. Lokalen hyrs ut som separat enhet, men det finns möjlighet att i dialog diskutera omfattning, kompletterande ytor och eventuella kombinationer beroende på verksamhetens behov.
Fastigheten omfattar även outnyttjad byggrätt, vilket på sikt kan möjliggöra vidare utveckling av byggnaden. Exempelvis kan takhöjd eller ytterligare yta komma att diskuteras, liksom möjligheten att bygga in befintliga ytor under skärmtak.
Eventuella åtgärder förutsätter sedvanliga tillstånd och sker i dialog.
Bilderna är digitalt bearbetade med hjälp av AI för att så långt som möjligt spegla faktiska förutsättningar. Avvikelser kan förekomma.