Nu finns en ledig lagerlokal med tillhörande kontorsdel om totalt 596 kvm i en modern industrifastighet i två plan i Veddesta. Lokalen passar verksamheter som söker en kombination av lager och kontor med bra lastmöjligheter och genomtänkt planlösning.
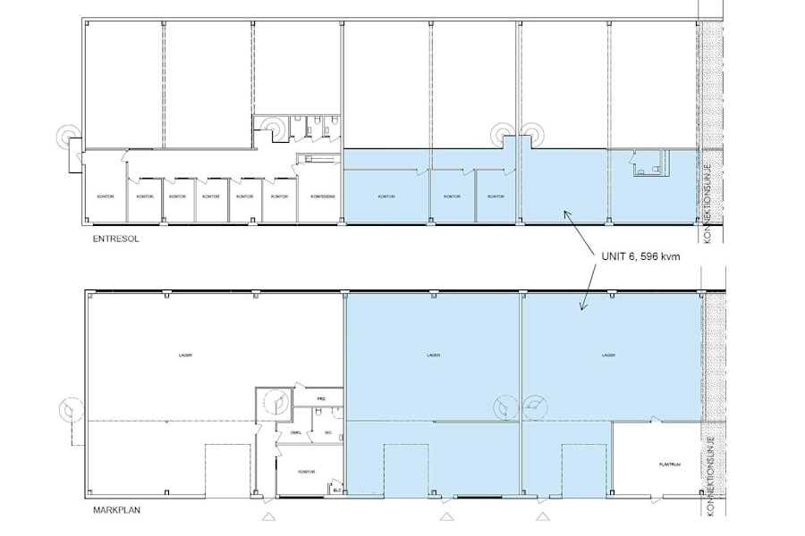
Lagerytan är belägen på bottenvåningen och har en öppen planlösning som ger flexibilitet för lagerhållning eller lättare verksamhet. Takhöjden är cirka 6,5 meter och lokalen har två markportar, 3,6 meter höga som underlättar in- och utlastning. Utöver bottenvåningen finns även en entresol som skapar ytterligare användbar yta.
Kontorsdelen är placerad på plan 2 och är indelad i flera mindre kontorsrum samt ett konferensrum. Här finns även matsal/pentry och WC. Planlösningen gör det enkelt att kombinera administrativa ytor med den dagliga verksamheten i lagret.
Parkering finns i direkt anslutning till lokalen.
Område
Fastigheten är belägen i Veddesta industriområde i Järfälla, cirka 20 km norr om centrala Stockholm, med god tillgång till E18 och närhet till Västerås och Uppsala. I området finns service och handel vid Barkarby handelsområde samt Jakobsbergs centrum, och goda kommunikationer med pendeltåg och buss.
Byggår: 2012
Våningsplan: 1 av 2
Planlösning: Se bland bilder/PDF.
Omgivning
Omgivning/natur: Direkt anslutning till E18
Företag i närheten: Stena Recyckling AB, Swedol, Mekonomen, Beijer Byggmaterial och NetOnNet
Parkeringsmöjligheter/garage: Parkering finns i anslutning till lokalen
Närservice: Med närhet till brett serviceutbud i Barkarby handelsområde och Jakobsbergs centrum. Komethallen gym, padelhall samt Friskis & Svettis finns inom gångavstånd från fastigheten