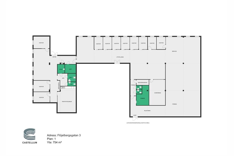
Denna kombinationslokal erbjuder en perfekt balans mellan kontorsrum och trevliga öppna ytor på cirka 300 kvm samt ett rymligt lager/plocklager på cirka 450 kvm. Ritningarna visar två olika förslag på planlösning.
Med en välkomnande entré och enkel tillgång till lastutrymme via en gemensam lastgång, är denna lokal utformad för att möta dina verksamhetsbehov på bästa sätt. Läget är utmärkt, beläget i närheten av den stora leden E6/E20, vilket gör det enkelt för både kunder och anställda att hitta hit. Dessutom erbjuder lokalen ett fördelaktigt skyltläge som kan öka synligheten för din verksamhet och attrahera fler potentiella kunder.
För att ytterligare underlätta för både personal och besökare finns det gott om parkeringsplatser. Denna lokal är verkligen en prisvärd och anpassningsbar lösning för din verksamhet.
Välkommen att kontakta oss för mer info och visning!
Övrig information
Fastigheten är belägen i Lackarebäcks Teknikpark i Mölndal ca 10 min bilväg från Göteborg centrum. Offentlig och kommersiell service finns vid Krokslätts Torg och Mölndals centrum inom 5 minuters bilavstånd. Parkeringsplatser finns i anslutning till fastigheten.
Ekonomi
Tillträde: Enligt överenskommelse.
Utförande
Våningsplan: 1
Omgivning
Omgivning/natur: Fastigheten har ett attraktivt läge i Lackarebäck intill E6/E20 och med närhet till Mölndals innerstad som har genomgått en stor ombyggnad med nya bostäder, flera nyöppnade butiker, restauranger, caféer, bank, apotek, systembolag och all övrig tänkbar service. I området finns en blandning av både kontors- och industrifastigheter och en mix av olika företag så som tillverknings-, utvecklings-och teknikföretag.