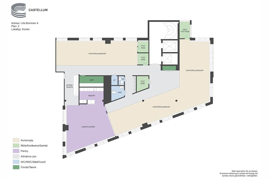
Ljus och generös lokal i två plan med öppen planlösning och stor flexibilitet. Fönster i flera väderstreck ger ett fint ljusinsläpp och en trivsam arbetsmiljö. En interntrappa binder samman våningsplan 2 och 3 och skapar en naturlig koppling mellan ytorna. Här finns goda möjligheter att skapa en attraktiv och hållbar arbetsplats, anpassad efter er verksamhet. Vid lokalanpassning eller ombyggnad är vår ambition att arbeta med återbruk så långt det är möjligt. Vi prioriterar hållbara materialval och lösningar som minimerar miljöpåverkan. Med Nordstan runt hörnet och närheten till både Centralstationen och vattnet får ni ett läge som kombinerar service, tillgänglighet och stadsliv. Välkommen att kontakta oss för mer information och visning.
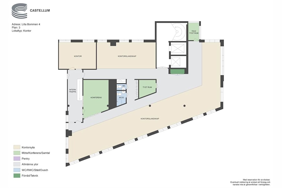
Ytor/Planlösning
Idag erbjuds stora, öppna och ljusa kontorsytor på båda våningsplanen. Planlösningen är flexibel och kan anpassas efter era önskemål – oavsett om ni föredrar aktivitetsbaserat, teamzoner eller en mer klassisk rumsindelning.
Övrig information
Fastigheten omfattar nio våningar med kontor samt garage i källarplan som nås via hiss. Här sitter ni i ett etablerat kontorshus med ett av Göteborgs mest attraktiva lägen, precis vid vattnet. Lokalerna erbjuder generösa ytor med goda möjligheter till anpassning. Och under våren invigs en ny innergård som blir en grön och välkomnande plats för pauser, informella möten och återhämtning.
Ekonomi
Tillträde: Enligt överenskommelse.
Utförande
Våningsplan: 3
Omgivning
Omgivning/natur: Här arbetar ni mitt i Göteborg, med GöteborgsOperan ett stenkast bort, Nordstan runt hörnet och Centralstationen på några minuters promenadavstånd. Det vattennära läget ger en unik inramning samtidigt som stadens utbud alltid finns nära. I Nordstan – Sveriges tredje största shoppingcenter – finns ett brett utbud av restauranger, caféer, butiker och service. Läget gör det enkelt för både medarbetare och besökare att ta sig hit, oavsett färdsätt. Smidig access via de stora trafiklederna förenklar vardagen ytterligare.
Parkeringsmöjligheter/garage: Garageplatser finns att hyra i byggnaden. Via hissen når man källarplanet där garaget är beläget.