Nu finns möjlighet att hyra en flexibel och representativ kombilokal om totalt 205 kvm, fördelad på 79 kvm lager och 126 kvm kontor. Lokalen passar utmärkt för verksamheter som söker en effektiv kombination av lager, service och kontor.
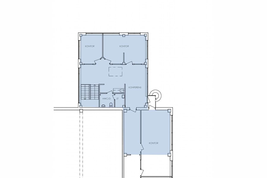
Lagerytan i markplan har öppen planlösning och nås via egen markport, vilket ger smidig in- och utlastning samt god tillgänglighet. Kontorsdelen om 126 kvm är belägen på plan två och nås via en interntrappa. Här erbjuds moderna och ljusa kontorsytor med generösa glaspartier som skapar en luftig och professionell arbetsmiljö. Planlösningen består av kontorsrum i varierande storlekar, mötesrum samt pentry/kök, städförråd, dusch och WC.
Fastigheten har fri access mot Flygledaregatan/Höjdrodergatan och det finns goda parkeringsmöjligheter i direkt anslutning till lokalen.
Område
Bulltofta industriområde ligger 5 kilometer nordost om centrala Malmö och är ett av de största och mest expansiva företagsområden i Malmö präglat av lätt industri, lager- och logistikverksamheter samt viss handel. Området ligger strategiskt placerat i direkt anslutning till Inre Ringvägen som leder vidare till E6/E20, E22 och E65 på ett par minuter. Enklare serviceutbud av lunchrestauranger och viss handel finns att tillgå i närområdet. Det finns goda kollektivtrafikförbindelser med buss till centrala Malmö.
Ytor/Planlösning
Se bilder/PDF.
Ekonomi
Kontraktlängd: Förhandlingsbart
Kontrakttyp: Förstahandskontrakt
Tillträde: Omgående
Utförande
Fastighetsbeteckning: Höjdmätaren 1
Byggår: 1990
Renoveringsår: 2015
Omgivning
Omgivning/natur: Närhet till Bulltofta rekreationsområde med stora grönområden
Företag i närheten: XXXLutz, Ahlsell, Swedol, Audi och Volkswagen
Parkeringsmöjligheter/garage: Möjlighet att teckna tilläggsavtal för parkering i anslutning till lokalen
Skyltläge: Bra exponering av skyltläge mot Höjdrodergatan/Flygledaregatan
Vägbeskrivning: Direkt anslutning till Inre Ringvägen med anslutning från E6/E20, E22 och E65