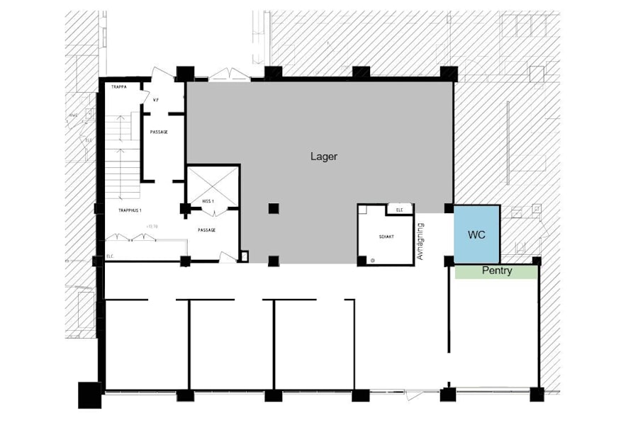
Välkommen till Gamlestadsvägen 18B – en flexibel lokal om 322 kvm i markplan med goda inlastningsmöjligheter och närhet till parkering. Lokalen lämpar sig utmärkt för verksamheter som söker en kombination av kontor, lager och/eller showroom i ett strategiskt läge.
Ytan är i dagsläget öppen och kan anpassas efter behov. Inför nästa uthyrning kommer lokalen att förses med både pentry och WC – och som ny hyresgäst har du möjlighet att vara med och påverka utformningen av planlösningen för att optimera lokalen efter just din verksamhet.
Här får du en lokal med stor potential, lättillgängligt läge och möjlighet till inflytt i en nyanpassad yta efter dina önskemål.
Våningsplan: 1
Omgivning
Omgivning/natur: Citynära i framtidens centrum
Anrika Gamlestaden är ett nyckelområde i framtidens Göteborg, och en satsning på bostäder, handel och service beräknas resultera i dubbelt så många invånare 2035. I Balansens närområde kommer nya kvarter med både bostäder och kommersiella ytor att växa fram enligt det detaljplanearbete som nu pågår, med Castellum som en av de drivande aktörerna. Hit tar man sig enkelt med bil, cykel, buss, spårvagn eller pendeltåg via resecentrum några minuter bort. Med bara en hållplats till Centralstationen är restiden från resecentrum endast cirka fem-sex minuter.
Runt hörnet finns redan hotell och omtalade restauranger som Wine Mechanics och Spike Brewery för lunch, representation och after work. Ett stenkast bort i Kviberg finns Nordens största multisportarena som erbjuder längdskidåkning inomhus, och med världens största beach-volleyhall som granne. Simhall, bowlinghall och flera gym finns också i närområdet.
Parkeringsmöjligheter/garage: Utanför huset finns goda parkeringsmöjligheter.