Upplev arbetsglädje högt upp på våning 22 i The Point!
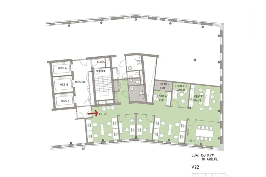
Denna kontorslokal på 153 m2 erbjuder två separata kontorsrum, ett öppet kontorslandskap med plats för upp till 8 personer samt ett stort konferensrum perfekt för möten och presentationer. Pentryt gör vardagen enkel och bekväm, och de stora fönstren fyller lokalen med naturligt ljus, samtidigt som ni njuter av en fantastisk utsikt över Skånes landskap.
Lokalen är självklart utrustad med toaletter och RWC med dusch, som gör det tillgängligt och praktisk för alla medarbetare och besökare.
Välkomna att kontakta oss för visning!
Delar av bildmaterialet är visualiseringar av möjlig användning av lokalen.
Omgivning
Hyllie är en av Malmös yngsta och mest expansiva stadsdelar och utgör bostad, arbetsplats och mötesplats för tusentals Malmöbor, företagare och besökare. Stadsdelen är välplanerad med bra tillfartsvägar och gott om parkeringar för både bil och cykel, enligt stadens Bike & Ride-koncept. Mitt i Hyllie, alldeles intill The Point och Quality Hotel View, ligger Hyllie station med direktförbindelse via tåg till Kastrup på tolv minuter, och via Citytunneln till Triangeln och Malmö central på kortare tid än så. I närområdet finns bland annat Malmö Arena, Malmömässan, köpcentret Emporia, Hyllie vattenpark, Hyllievångsparken, Ikea, handelsområdet Svågertorp, bostäder, skolor, kontor och butiker. I området finns även stora möjligheter till avkoppling i anslutning till grönytor och parkområden. Stadsdelen utvecklas med stort klimatfokus enligt en vision om att vara en global förebild för hållbar stadsutveckling.
Fastigheten är belägen 30 meter från Hyllie station där du snabbt tar dig in till Malmö C eller mot Kastrup och Köpenhamn. Med bli tar du dig lätt ut till ringvägen eller ut på motorvägen mot Öresundsbron och Danmark. All service i form av butiker, matvarubutiker och restauranger finns i närheten. På bottenplan i fastigheten finns restaurang.
Fastighet
The Point är, med sina 29 våningar och 110 höjdmeter, inte bara Öresundsregionens högsta kontorshus utan också ett av de bäst belägna. The Point ligger mitt i Hyllie en av Malmös mest expansiva stadsdelar som tack vare sitt strategiska läge, sina smidiga kommunikationer och sin gröna vision har attraherat ett stort antal företag med en internationell profil. Byggnaden kan stoltsera såväl med premiumkvalitet i allt från arkitektur till byggmaterial och inredningsdetaljer, som en byggprocess präglad av hållbarhet i alla led vilket lett fram till märkningen Miljöbyggnad Silver. Entrévåningen är spektakulär med högt i tak och lounge på en mezzaninvåning. Övriga våningsplan erbjuder 20 500 kvadratmeter av ljusa och flexibla kontorsytor i storlekar från 150 kvadratmeter och upp till flera våningsplan. Hyresgästerna kan njuta av en takhöjd på tre meter, magnifik utsikt och intelligent teknik som bland annat håller reda på in- och utcheckningar. The Point är sömlöst integrerat med grannbyggnaden Quality Hotel View, vilket innebär utmärkt service för både hyresgäster och besökare, bland annat i form av tillgång till en fullt utrustad konferensavdelning för upp till 800 samtidiga gäster, restaurang, catering och kemtvätt. I byggnadens bottenvåning finns även ett antal välexponerade butikslokaler.
För mer information, besök The Points hemsida https://thepoint.se.
Fastigheten ägs gemensamt av Volito Fastigheter och Peab.