Rätt lokal för det mindre företaget som söker ett representativt kontor på bästa adress!
Fastigheten: Huset uppfördes år 1928 och renoverades år 1989.: Hiss finns!
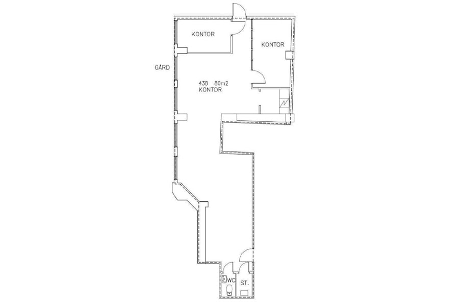
Planlösning: Lokalytan fördelas på en välkomnande entré med plats för väntande besök, en öppen kontorsyta med plats för 6-7 arbetsplatser, ett konferensrum för 6-8 pers samt ett mindre arbetsrum för en person vilket även kan nyttjas som ett extra samtalsrum. Lokalen har också ett trevligt litet pentry som är utrustat med diskmaskin och två kokplattor, städförråd med vask samt wc.
Lokalen är helt nyrenoverat med vitmålade väggar, nålfiltsmatta samt nytt glasparti mot konferensrummet. som gör det lilla extra. Takhöjden är bevarad och har inte sänkts med akustikplattor.
Lokalen har två entrémöjligheter. Huvudentrén är Kungsgatan 29 och härifrån finns hiss upp till plan 3 där lokalen är belägen. Det är även möjligt att använda sig av entrén vid Oxtorget 4 . Härifrån är det möjligt att ta in en cykel direkt in till den trevliga innergården för den som cyklar. Den ena entrédörren vetter direkt ut mot gården och via denna finns det goda möjligheter att ta emot och skicka leveranser och det är även möjligt att rulla in en Europall i lokalen.
Hyresgästen till denna lokal har en egen utgång direkt mot innergården vilket ger ett mervärde.
Ventilation: Mekanisk till- och frånluft med kyld tilluft.
Bredband: Fiber finns indraget i lokalen och Stokab har en avlämningspunkt i fastigheten.
Övrig information
Den bland hyresgästerna omtyckta hyresvärden har fri prövningsrätt vad gäller val av hyresgäst och verksamhet. Vänligen respektera att all kontakt och visningar skall ske via lokalförmedlaren enligt hyresvärdens önskemål. Kontakta lokalförmedlaren Hanna Friman för mer info; maila gärna till hanna@lokaldirekt.se eller messa/ring på mob: 0733-24 35 23.
Ekonomi
Kontraktlängd: Långtidskontrakt
Kontrakttyp: Förstahandskontrakt
Tillträde: Omgående eller enligt ök.
Prisinformation: Ingen överlåtelseavgift utgår!
Hyresinformation: Kontakta lokalförmedlaren för mer info.
Utförande
Byggår: 1928
Renoveringsår: 1989
Våningsplan: 3
Omgivning
Omgivning/natur: Hötorgets livliga torghandel åt ena hållet och Stureplan åt det andra. Läget kan knappast bli bättre.
Parkeringsmöjligheter/garage: Goda parkeringsmöjligheter finns i intilliggande p-garage i exempelvis Oxtorgsgaraget, Hötorgsgaraget och David Bagares Garage.
Kommunikationer
ans buss passerar strax utanför porten. Det är även gångavstånd till Stockholms Centralstation som är Stockholms bästa och viktigaste kommunikativa knytpunkt. Här avgår samtliga t-banelinjer, fjärrtåg, långfärdsbussar, flygbussar samt även Arlanda Express.