Nu finns möjlighet att hyra en lokal med ett strategiskt läge granne med Skärholmen Centrum. Här får du närhet till ett brett serviceutbud, smidig access till E4:an och gott om parkeringsmöjligheter – perfekt för både anställda och besökare.
Lokalen erbjuder två möjliga entreér som kan med fördel nyttjas till en extern en intern del. Det levande närområdet skapar en dynamisk miljö med goda kommunikationer och all tänkbar service inom räckhåll.
Ta chansen att etablera din verksamhet i ett expansivt område med bästa möjliga förutsättningar.
Kontakta oss för mer information och visning!
Ytor/Planlösning
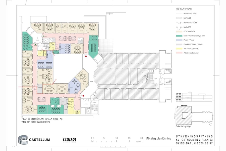
Lokalen omfattar totalt cirka 1 650 kvm, fördelade över entréplan (Plan 03) och övre plan (Plan 05). Planen är sammanhängande och uppbyggda kring en central ljusgård, vilket ger god orienterbarhet och fina ljusförhållanden i stora delar av lokalen.
Planlösningen erbjuder en genomtänkt kombination av öppna kontorslandskap, cellkontor, tysta rum samt mötes- och konferensrum, kompletterat med informella samarbetsytor. Flera pentryn och pausytrymmen är strategiskt placerade för att fungera som naturliga mötespunkter för olika team och avdelningar.
Lokalen är fullt utbyggd med servicefunktioner såsom WC-grupper inklusive RWC, förråd, IT-/datautrymmen samt teknikytor. Kommunikation mellan planen sker via trapphus och hiss, med tydliga entréer och effektiva flöden. Utformningen möjliggör uppdelning i flera enheter eller anpassning efter hyresgästens behov, vilket gör lokalen lämplig för större organisationer eller verksamheter med flera funktioner samlade under samma tak.
Övrig information
Fastigheten ligger precis intill södra delen av Skärholmen Centrum. Här kan du uträtta alla dina ärenden på en lunch. Byggnaden inrymmer kontor och ett mindre lager och har synnerligen god standard med en trevlig inglasad innergård.
Ekonomi
Tillträde: Enligt överenskommelse.
Omgivning
Omgivning/natur: Vår fastighet i Skärholmen angränsar nära till E4/E20 med en avfart direkt in till fastigheten. Resväg till centrala Stockholm med bil är cirka 15 minuter. Mycket bra kommunikationer med tunnelbana som ligger precis vid gallerian samt många busslinjer trafikerar området runt SKHLM. Regionen kring Skärholmen är ett mycket starkt läge och byggnationen av "Förbifart Stockholm" medför ännu kortare restider. Det händer mycket i Skärholmen med 6000 nya bostäder som planeras i närområdet vilket medför ett ytterligare stärkt Skärholmen.
Parkeringsmöjligheter/garage: Här finns det gott om garage- och parkeringsplatser att hyra.