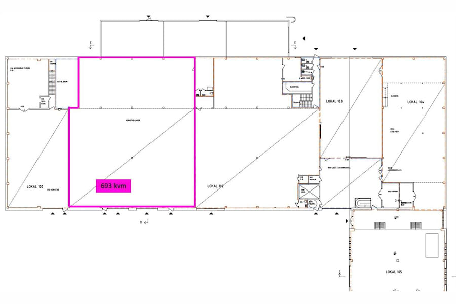
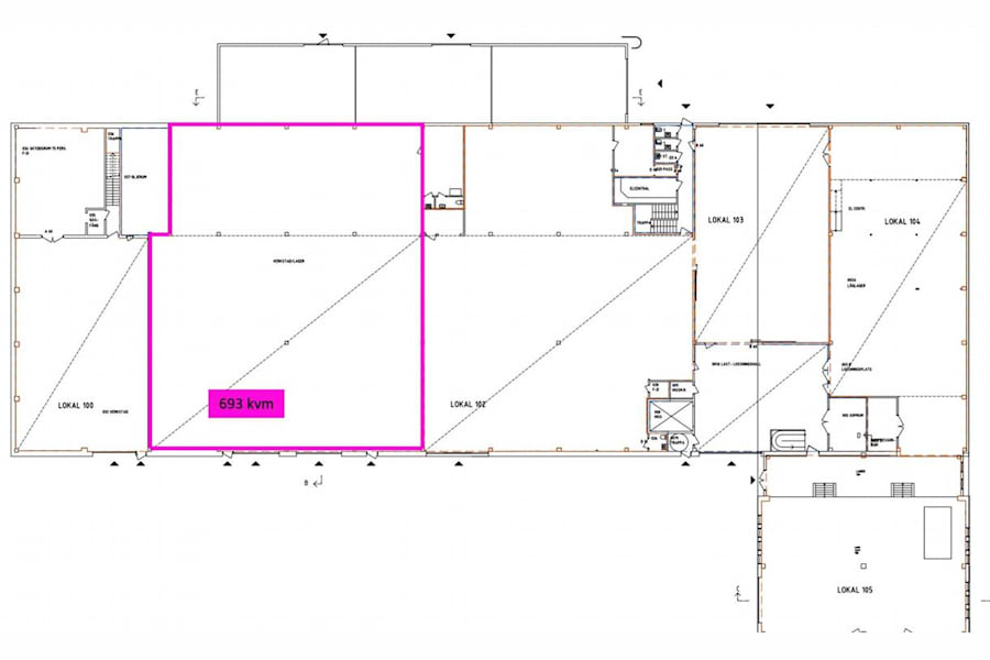
Här finns en lagerlokal om 693 kvm, med goda logistikmöjligheter, ledig. Lokalen har markport, bra takhöjd och öppen planlösning. Här finns det även möjlighet att hyra till kontorsytor i varierade storlekar och även att utöka lager ytan med intilliggande lageryta om 591 kvm. Se möjlig koppling på bild nr 6.
Utanför lokalen finns det gott om plats och goda möjligheter för långtradare att transportera och lasta in- och ur tung logistik.
Goda parkeringsmöjligheter finns på fastigheten.
Välkommen till oss på Croisette för ytterligare information och bokning av visning!
Ytor/Planlösning
Öppen.
Övrig information
Croisette Real Estate Partner har erhållit förmedlingsuppdrag avseende lokalen som beskrivs i detta informationshäfte. Informationen är till största del inhämtad från Fastighetsägaren och eller Hyresgästen. Croisette AB och dess dotterbolag (”Croisette”) ansvarar inte för riktigheten i informationen. All information som är av relevans skall kontrolleras av en eventuell hyresgäst och varken Fastighetsägaren, Hyresgästen eller Croisette kan hållas ansvarig vid felaktigheter i detta informationshäfte.
Ekonomi
Tillträde: Enligt överenskommelse
Omgivning
Omgivning/natur: Detta är ett industriområde som även har god närhet till bostadsområden, idrott och natur.
Företag i närheten: Ingenjörsbyrå Forma AB, Hydraulic Supplier i Norden AB, Rhodsig Company AB, BrumBrum Bilverkstad
Parkeringsmöjligheter/garage: Parkeringsmöjligheter utanför lokalen