Lättillgänglig fastighet som innefattar lokaler för kontor, produktion och butiksverksamhet erbjuder nu en ledig kontorslokal om 202 kvm. Lokalen är belägen på plan två och består av en blandad planlösning med separata kontorsrum i varierande storlek, öppna ytor med utrymme för kontorslandskap samt faciliteter i form av kök/pentry, förråd och WC.
Byggnaden ligger med fri access mot Stenyxegatan och det erbjuds fri parkering i anslutning till lokalerna, möjlighet till elbilsladdning finns.
Område
Fosie ligger cirka 10 kilometer sydost om centrala Malmö. Det ligger strategiskt placerat direkt intill de viktiga transportlänkarna E6, E65 och Inre Ringvägen med snabb access in och ut ur Malmö. Området präglas delvis av verkstäder men även av blandad företagsverksamhet inom lättindustri och handel. Jägerso Center finns inom nära räckhåll med stort serviceutbud av butiker och restauranger. Det finns goda kollektivtrafikförbindelser med buss till centrala Malmö.
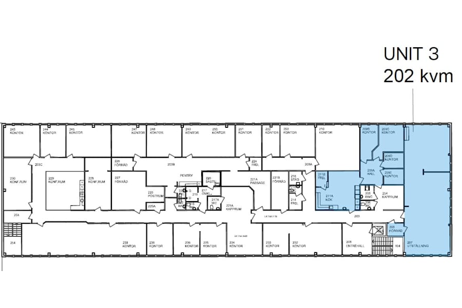
Ytor/Planlösning
Se planritning bland bilder eller ladda ned PDF.
Ekonomi
Kontraktlängd: Förhandlingsbart
Kontrakttyp: Förstahandskontrakt
Tillträde: Omgående
Utförande
Fastighetsbeteckning: Krukskärvan 8
Byggår: 1973
Våningsplan: 2 av 2
Takhöjd: 2,4 m
Omgivning
Företag i närheten: EKO, Scanfil, ABB, Office Depot, Byggmax, Ahlsell, ZooGiganten och Bilgalaxen
Parkeringsmöjligheter/garage: Gott om parkeringsplatser på fastigheten (fri parkering), elbilsplatser
Skyltläge: Bra skyltläge mot Stenyxegatan
Vägbeskrivning: Direkt anslutning till E6, E65 och Inre Ringvägen