Nu finns chansen att hyra en trevlig kontorslokal, på bra läge i Vasastan och med förmånliga hyresvillkor! Belägen endast ett stenkast från Odengatans härliga puls.
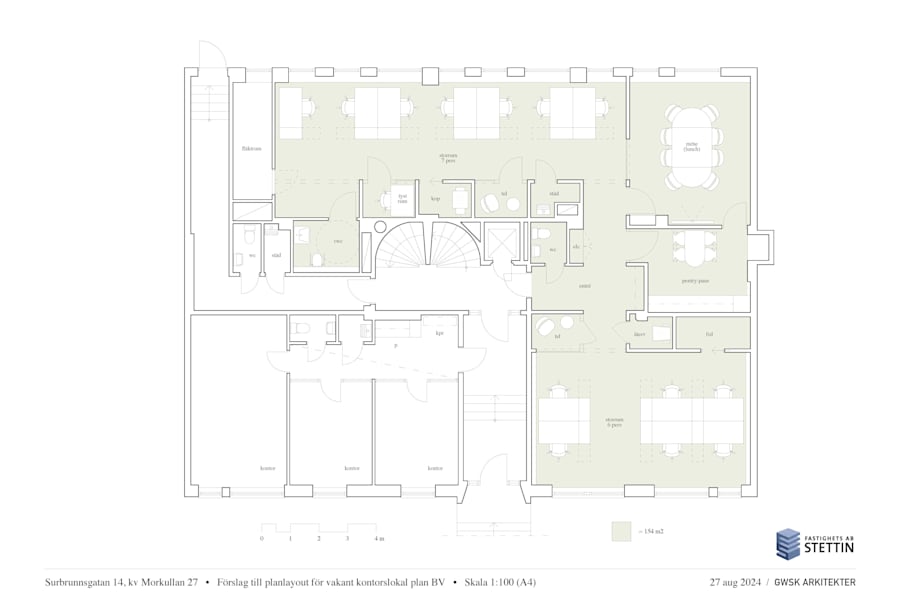
Lokalen är uppdelad i flertalet kontorsrum, mötesrum, konferens samt pentry och 2 wc. Det finns även möjlighet att göra om i planlösning för att anpassa utefter er verksamhet.
Kan finnas möjlighet till 2 garageplatser.
Välkomna på visning!
Ekonomi
Kontraktstyp: Första hand Kontraktslängd: 3 till 5 årigt hyresavtal direkt med fastighetsägaren Uppvärmning: 80 Kyla: 69 El: Eget abonnemang Deposition: 6 månadshyror i hyresgaranti/deposition/bankgaranti
Bekvämligheter
Garage, Cykelparkering, All tänkbar service och bekvämligheter. Här hittar du ett brett utbud av restauranger, caféer, butiker och gym. Kollektivtrafikförbindelserna är utmärkta, vilket gör det enkelt att ta sig runt i staden. Här får ni allt man behöver inom bekvämt avstånd.
Utförande
Byggår: 1961 Antal våningar: 6 Våningsplan: 1 Ventilation: Självdrag