Välkommen till en fräsch kontorslokal med genomgående textilmatta och fina ytskikt. Lokalen erbjuder en öppen planlösning kombinerad med ett antal cellkontor och konferensytor, vilket ger en flexibel arbetsmiljö som passar både samarbete och fokus.
Stora helglasade partier med 35 dB ljudreduktion ger ett härligt ljusinsläpp samtidigt som en behaglig ljudnivå bibehålls. Lokalen har dessutom bra kyla och ett stabilt inomhusklimat året runt.
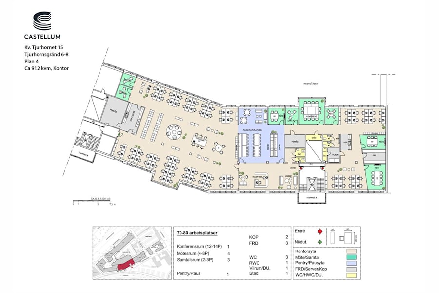
Med två entréer och smart planering blir detta en modern arbetsplats som ger ett professionellt intryck för både medarbetare och besökare.
Välkommen på visning!
Ekonomi
Tillträde: Enligt överenskommelse.
Utförande
Våningsplan: 4
Omgivning
Omgivning/natur: Vid sidan av de stora arenorna och Slakthusområdets kulturliv ligger lugna och trivsamma Bolidenplan. Ett avskilt hörn i ett område som just nu går igenom en stor förvandling. Men det märks inte här. För här vajar träden utanför fönstren och det är lätt att finna arbetsro, plats och parkering. Lika lätt som det är att ta sig vidare ut i kvällen och till stans klarast lysande nöjeskvarter, när arbetsdagen tagit slut.
Unikt för området är närhet till Globen Centrum, Avicii Arena, Tele-2 Arena samt Slakthusområdet, som kommer bli Stockholms nya mötesplats för mat, kultur och upplevelser. I Slakthusområdet hittar du också Solen och Afrika, två restauranger som tar dig på en kulinarisk resa runt jorden. Solen, som lyfts som en av de mest lyckade krogöppningarna under 2023, och Afrika, som samlar tre olika afrikanska matkulturer under ett och samma tak. Båda värda att besöka efter kontorstid.
Kanske är Globenområdet det smartaste valet för er som vill jobba där det händer men investera i något roligare än hyra.
Parkeringsmöjligheter/garage: Här finns det parkeringsplatser att hyra. Är du intresserad kontakta Aimo Park på telefonnummer 0771-96 90 00 som ansvarar för hela parkeringslösningen.
Det finns även tillgång till både varm-och kallgarage vid fastigheten.