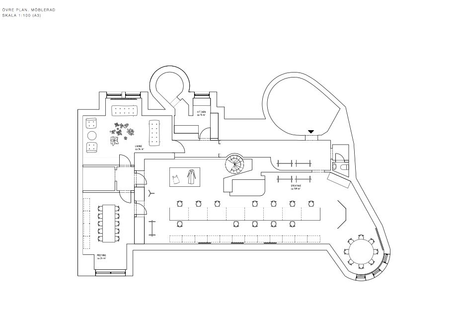
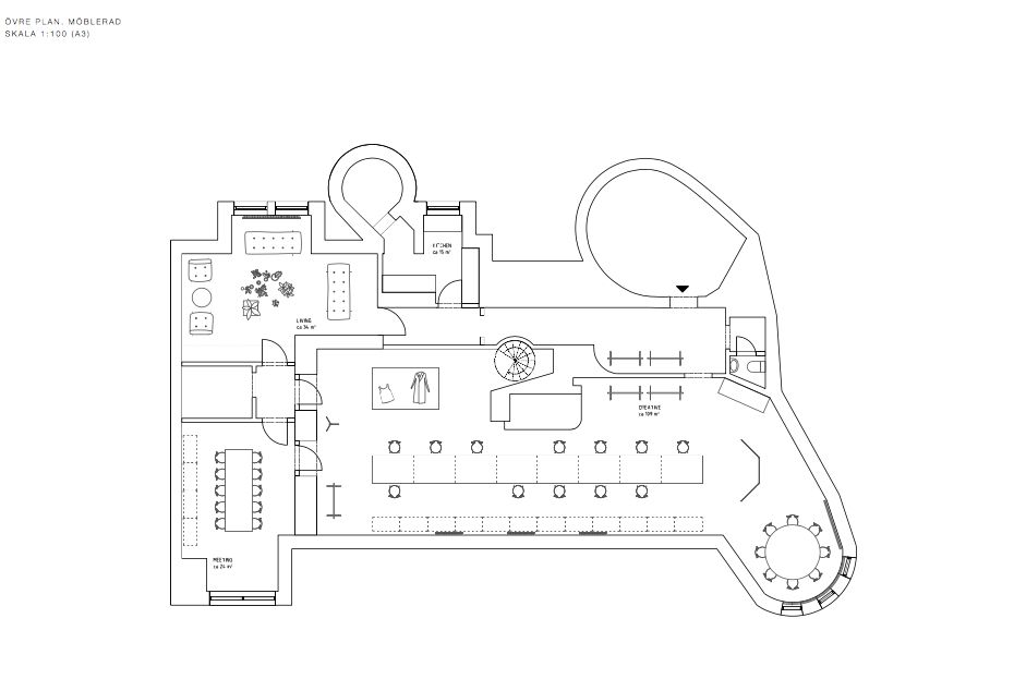
Torstenssonsgatan 4 erbjuder vi nu en lokal högst upp i huset om totalt ca 201 kvm. En väldigt effektiv planering med en stor öppen planlösning och med bra tillhörande arbetsrum/samtalsrum. Går även att öppna upp lokalen ytterligare för att ändra om flödet. Separat pentry samt 2 WC varav en större med dusch.
Tillträde enligt överenskommelse eller omgående.: Avtalstid 3 år eller ett mer flexibelt upplägg.
Varmt välkommen på visning!
Ekonomi
Kontraktstyp: Första hand Kontraktslängd: 3 år Uppvärmning: 100 El: Eget abonnemang Moms: Moms tillkommer Deposition: 3-6 mån
Bekvämligheter
Hiss, Internet: Fiber, Ett flertal restauranger i närområdet på Narvavägen, Riddargatan och Storgatan. Ica på Riddargatan finns runt hörnet. Busstrafik och spårbunden trafik från Djurgårdsbron, ca 100 meter från lokalen.
Utförande
Byggår: 1897 Antal våningar: 5 Våningsplan: 4
Kommunikationer
Buss: Innerstadsbussar från Djurgårdsbron Spårvagn: Tvärbana från Djurgårdsbron ca 100 meter bort från fastigheten.