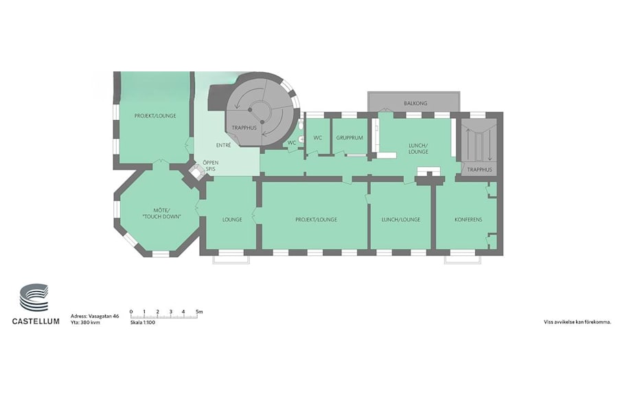
Nu finns det möjlighet att hyra en representativ och karaktärsfull kontorslokal om 244 kvm i hjärtat av Lorensberg. Lokalen erbjuder en unik kombination av klassisk charm och funktionell flexibilitet. Här möts ni av vackra originaldetaljer som ger rummen en varm och genuin karaktär. Det generösa ljusinsläppet från de stora fönsterpartierna bidrar till en ljus och luftig känsla genom hela lokalen. Fönstren vetter ut mot Vasagatan, vilket ger både ett trevligt utsiktläge och en tydlig närvaro mot ett av stadens mest levande och attraktiva stråk.
Den passar perfekt för verksamheter som vill skapa en inspirerande och inbjudande miljö för både medarbetare och besökare.
Välkommen på visning!
Övrig information
En anrik äldre fastighet, byggt 1883, med mycket vacker fasad och entré. Innergård finns. Fastigheten ligger på hörnet Vasagatan / Götabergsgatan.
Ekonomi
Kontraktbeskr.: Hyra: 841 800 kr/år Fastighetskatt: 44 000 kr/år Driftskostnader: 44 000 kr/år (värme, vatten samt sopor) El: hyresgästen tecknar eget abonnemang Moms tillkommer med 25%
Tillträde: 2027-01-01.
Utgångshyra kr/m2/år: 3450
Utförande
Våningsplan: 3
Omgivning
Omgivning/natur: Fastigheten ligger ett stenkast från Avenyn och ingår i ett större bostadskvarter. I omgivningen finns ett rikt utbud av butiker, restauranger och caféer.