Toppmodern logistik i bästa primeläge. Endast ca 10 minuter till centrala Göteborg.
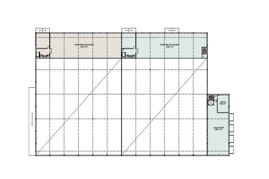
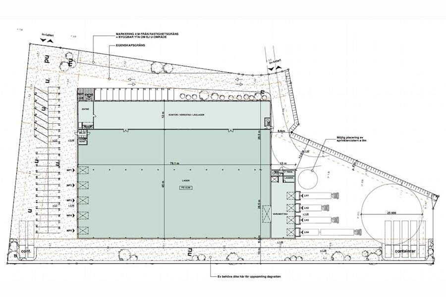
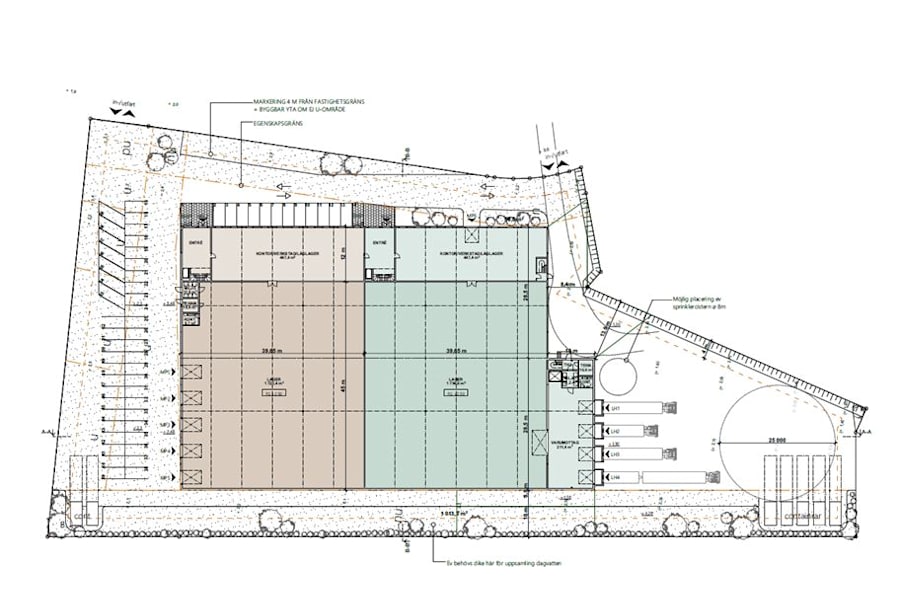
Byggnaden utformas i enlighet med hyresgästens önskemål (Built To Suit). Möjlighet att hyra från ca 2 000 kvm upp till ca 6 000 kvm i markplatta. Till detta finns möjlighet att tillskapa entresolplan. Strategisk placering intill E45 i Gamlestaden/Alelyckan. Byggnaden är lämplig för lager/logistikverksamhet eller lättindustri.
-Attraktivt "last-mile-läge" endast ca 10 minuter från centrala Göteborg.
-Ca 9 m fri takhöjd i lagerdelen
-Lastportar och markportar enligt önskemål
-Målsättningen är att erhålla certifiering enligt enligt Breeam Excellent
-Energieffektiv byggnad med solceller på taket
-Golvbärighet ca 3 ton/kvm
-Tillträde 13-15 månader efter signerat hyresavtal.
Välkommen att kontakta Rikard Skoglund, Cushman & Wakefield, 070-754 33 13, för mer information/visning!